jtB House | BLAF architects
BLAF Architects ,Release Time2023-09-07 11:47:00
CLIENT: Private
LOCATION: 3052 Blanden (BE)
DESIGNTEAM: BLAF architecten
PROGRAM: Single-family house
STATUS: Completed in 2022
STABILITY + EPB: Heron Engineers
STRUCTURAL WORK: Legoclean
TIMBER FRAME: Peter Willem
PLUMBING + HEATING + VENTILATION: Enerpro
TECHNIQUES: Exie
LIME HEMP + CLAY PLASTER: Ecobouw Craeghs
STAIRS: Stiel Atelier
LANDSCAPE ARCHITECTURE: Buls Claes
PUBLICATIONS (DIGITAL): baunetz.de, ospace.uk
Copyright Notice: The content of this link is released by the copyright owner BLAF Architects. designverse owns the copyright of editing. Please do not reproduce the content of this link without authorization. Welcome to share this link.
版权声明:本链接内容均系版权方发布,版权属于BLAF Architects,编辑版本版权属于设计宇宙designverse,未经授权许可不得复制转载此链接内容。欢迎转发此链接。
Copyright Notice: The content of this link is released by the copyright owner BLAF Architects. designverse owns the copyright of editing. Please do not reproduce the content of this link without authorization. Welcome to share this link.
The geometric design and the circular way of energetically performing building that characterize BLAF is strongly present in this house. The wall structure with a self-supporting facing brick on the outside, a light timber frame on the inside and filled with biobased dry lime hemp without a cavity is an alternative to the traditional cavity wall.

© Stijn Bollaert
© Stijn Bollaert
© Stijn Bollaert
© Stijn Bollaert
© Stijn Bollaert
The cavity wall with a lot of insulation is no longer tenable as a building system. As a result, we came up with an alternative hybrid outer shell that makes reversible building possible. We first build an outer wall, and then a light timber frame inside, or vice versa. You can also break down the outer shell or the inner shell, because they each stand on their own. We simply don't calculate thermal bridges. That's wasted time, we just don't make any. So there are no connections between the inside and the outside. To do this, we needed a load-bearing outer wall from which you can detach the outer wall from the interior.
© Stijn Bollaert
© Stijn Bollaert
© Stijn Bollaert
© Stijn Bollaert
© Stijn Bollaert
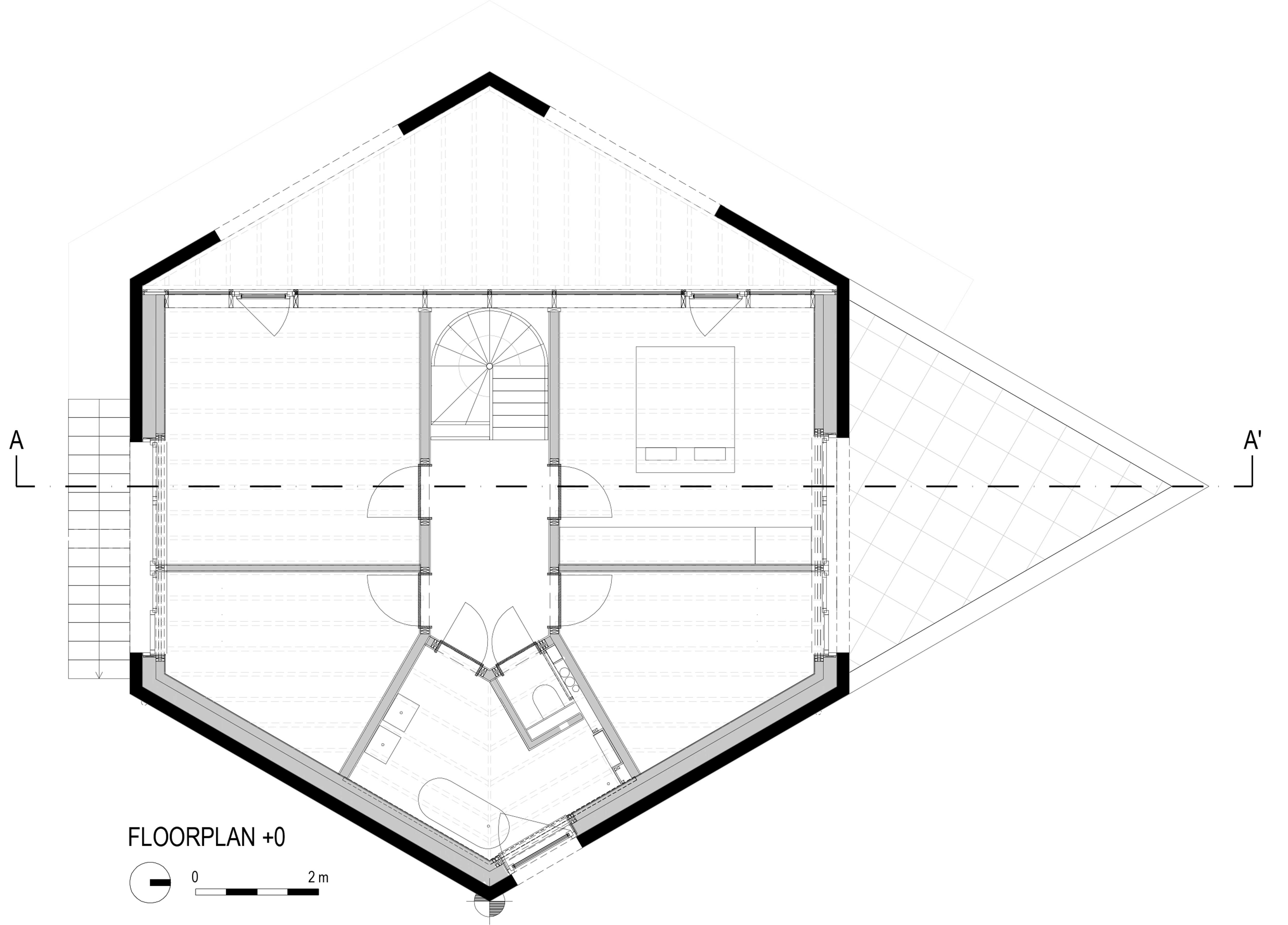
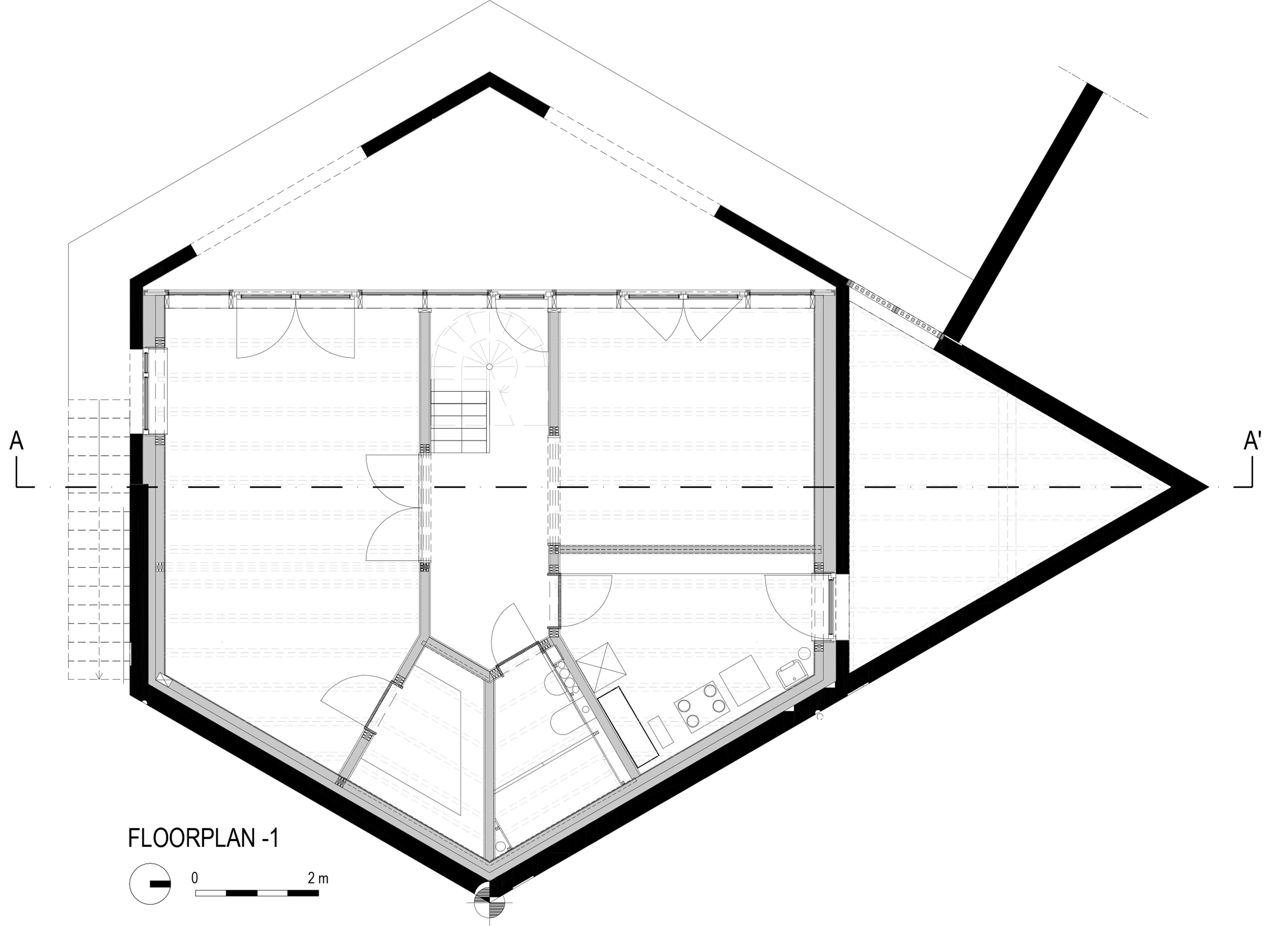
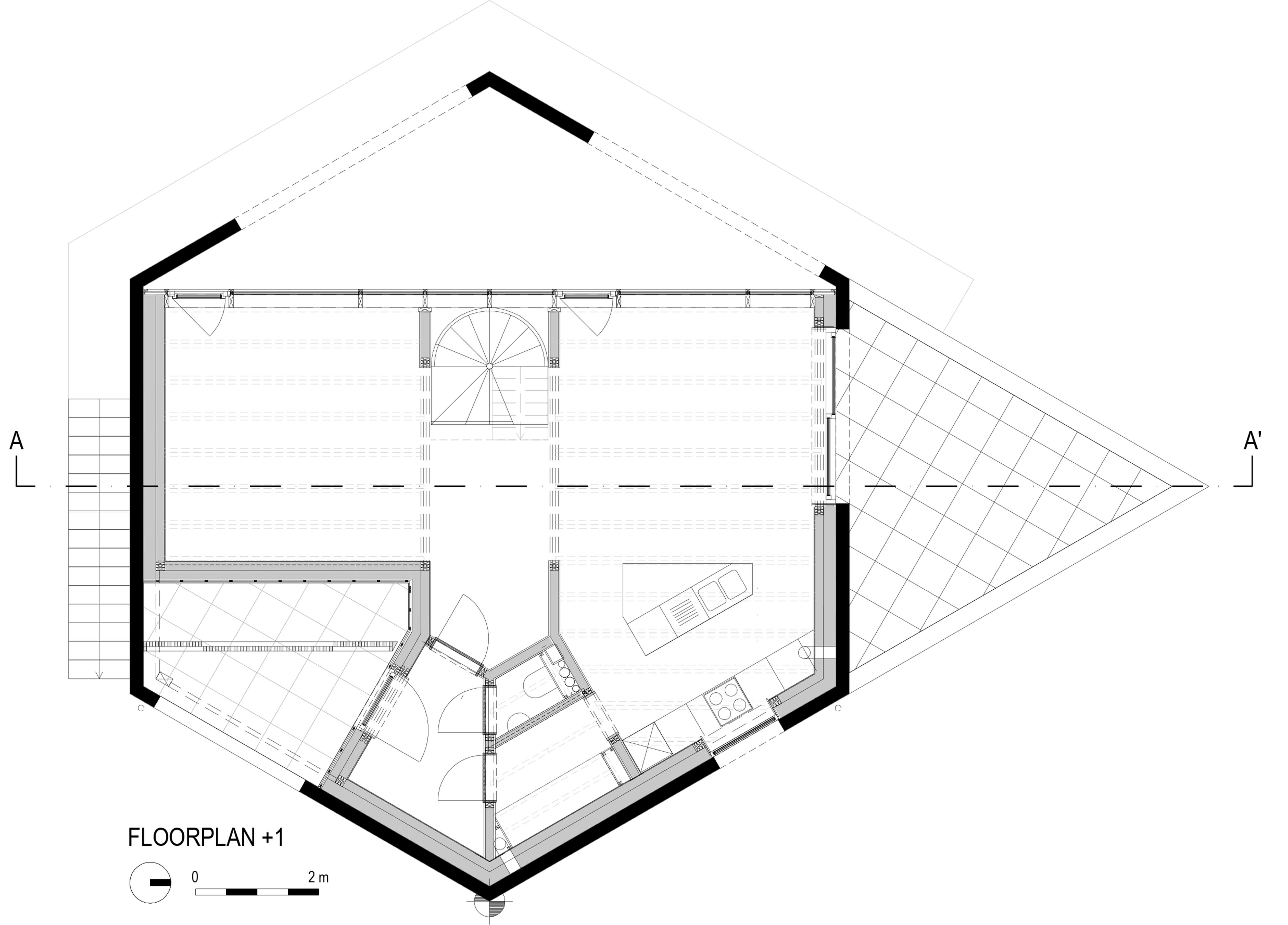
The design concerns a compact and energy-efficient single-family home. The starting point: respect for the relief and the environment. A compact volume was aimed for, so that the visual relationships from the public domain to the landscape behind are preserved. Due to the compact hexagonal, equilateral footprint, the volume stands solitary in the landscape, the undeveloped land retains its relief as much as possible.
© Stijn Bollaert
© Stijn Bollaert
© Stijn Bollaert
© Stijn Bollaert
© Stijn Bollaert
The shape with its sloping sides creates a greater distance to the lateral plot boundaries, which limits the impact on the environment and provides privacy to the neighbors. In the side walls, the window openings are also limited to ensure the privacy of the neighbours. In order to integrate the volume discreetly into the landscape and to provide a sufficient residential program, the house is pushed into the slope.
© Stijn Bollaert
© Stijn Bollaert
© Stijn Bollaert
© Stijn Bollaert
© Stijn Bollaert
At the rear, within the enclosed hexagon, we withdraw the protected volume and introduce a wooden curtain wall that extends over the 3 storeys. The patio that is created between the curtain wall and the stone shell serves as sun protection in the warm summer months.
© Stijn Bollaert
© Stijn Bollaert
© Stijn Bollaert
© Stijn Bollaert
© Stijn Bollaert
The curtain wall guarantees a view of the landscape behind on every floor. The openings in the brick volume frame the landscape. The concrete (ring) beams in the facade guarantee the stability of the self-supporting facade masonry under wind loads.
© Stijn Bollaert
© Stijn Bollaert
© Stijn Bollaert
© Stijn Bollaert
jtB_elevations © BLAF architects
jtB_floorplan +0 © BLAF architects
jtB_floorplan +1 © BLAF architects
jtB_floorplan -1 © BLAF architects
jtB_isometry © BLAF architects
jtB_section AA © BLAF architects
jtB_site plan © BLAF architects
wall composition © BLAF architects
wall composition © BLAF architects
jtB_wall composition isometry © BLAF architects
jtB_wall composition section © BLAF architects
jtB_wall composition © BLAF architects
jtB_wall composition_project sheet © BLAF architects
jtB_wall composition_visualization_no text © BLAF architects
jtB_wall composition_visualization_text © BLAF architects
Dune Villa West aan Zee | 2by4-architects
MELCHOR OCAMPO 288 | HGR Arquitectos
Casa Granada | Estúdio HAA!
jtB House | BLAF architects
16-0590-fmM | BLAF Architects
Poppy Factory | Henley Halebrown

HELSINKI AIRPORT DEPARTURES AND ARRIVALS BUILDING | ALA ARCHITECTS

宁武燕麦工厂 | 卓汉苏文建筑事务所
Subscribe to our newsletter
Don't miss major events in the global design industry chain and important design resource companies and new product recommendations
Contact us
Report
Back to top





