秦皇岛阿那亚单向空间书店 | B.L.U.E. 建筑设计事务所
B.L.U.E.建筑设计事务所 ( 青山周平,藤井洋子),发布时间2019-09-16 15:01:42
建筑师:B.L.U.E. 建筑设计事务所
地址:中国河北秦皇岛
类别:室内设计
设计团队:⻘山周平,藤井洋⼦,刘凌子,杨⾬嘉,曲海波
客户:阿那亚
建筑面积:590.0 平方米
项目年份:2018
摄影师:吴清山
版权声明:本链接内容均系版权方发布,版权属于 B.L.U.E.建筑设计事务所(青山周平,藤井洋子),编辑版本版权属于设计宇宙designverse,未经授权许可不得复制转载此链接内容。欢迎转发此链接。

©️ 吴清山
项目是单向空间书店位于秦皇岛阿那亚社区的新址,一间面积为590平方米的海边书店。设计内容包括外立面改造,室内设计与景观设计。

概念空间图 ©️ B.L.U.E. 建筑设计事务所

概念平面图 ©️ B.L.U.E. 建筑设计事务所
设计对于空间的想象,最初源于“孤独”。当人们远离城市的暄嚣,独自身处海边,面对自己,孤独感瞬间被成倍放大了。与传统书店不同的是,设计企图创造一个以人为单元的互动空间。在原有梁柱结构不变的前提下,采用“包裹”和“消解”的方法,将不同功能的深灰色木质的盒子穿插其中。这些形态大小不一的“盒子”赋予原本单一的空间更丰富的延展方式,令读者在随意游走中完成对空间的趣昧探索。既可以隐于一个人独处的小盒子,沉浸于一个人的冥想,也可以走入更开放的空间,遇到新的朋友产生交流和互动。这些“盒子”给了人们选择孤独的机会,也带来相聚的可能。

©️ 吴清山

©️ 吴清山
书店主入口和外摆区的景墙由混凝土现浇而成,混凝土自然的表面肌理给人粗粝又有温度的感受。高低错落的墙体和植物营造出的过渡空间,将外界的纷扰统统阻隔在一方墙外。当读者由外至内穿过这一区域,内心也从外界的暄闹自然转换到阅读所需的安静里。

©️ 吴清山

©️ 吴清山
材料运用上,保留了原建筑混凝土的粗犷氛围,搭配深灰色木皮,原色钢板与水磨石等自然朴素的材料,营造出独特的,属于海边书店的独立冷静的氛围。

©️ 吴清山

©️ 吴清山
阿那亚单向空间书店的设计,不止是一家书店,更是一个场域和氛围。将公共空间与私密空间分解、并置在同一场域,让每一个读者与自我,与他人共享一个界限模糊的思考空间,产生情感共鸣。这是一种对阅读空间新的探索,也是在快节奏的时代里对于思考和交流的重新认识。

©️ 吴清山

©️ 吴清山

©️ 吴清山

©️ 吴清山

©️ 吴清山

©️ 吴清山

©️ 吴清山

©️ 吴清山

©️ 吴清山

©️ 吴清山

©️ 吴清山

©️ 吴清山

©️ 吴清山

©️ 吴清山

©️ 吴清山

©️ 吴清山

概念效果图 ©️ B.L.U.E. 建筑设计事务所

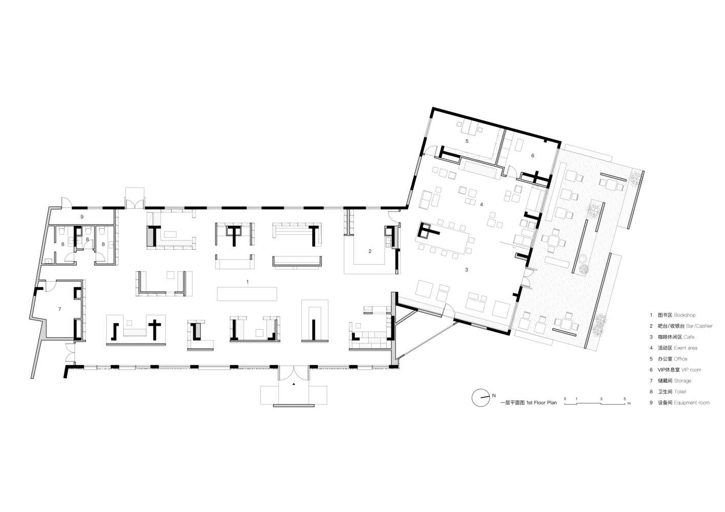
1层平面图 ©️ B.L.U.E. 建筑设计事务所

绿城鹿城广场空中会所 | AB Concept
2025-2026 Designverse Awards 设计宇宙大奖 评审团大奖获奖名单(完整版)| 空间 / 产品 / 品牌大事件类 235 家机构上榜
Blurring 2 Attics: two interconnected studios in Poblenou | Bajet Giramé

JM Cafe 白塔寺店 | B.L.U.E.建筑设计事务所
城市寄生家具计划,深圳 | B.L.U.E.建筑设计事务所
失物招领杭州天目里生活提案店丨B.L.U.E.建筑设计事务所
汤山星空餐厅丨孟建民本原设计

RETAIL DESIGN FOR HUMAN HORIZONS丨GRAFT
塞伦斯 · 密境民宿 | 無隐建筑
订阅我们的资讯
切勿错过全球大设计产业链大事件和重要设计资源公司和新产品的推荐
联系我们
举报
返回顶部





