
平仄的错合: 凯旋坊工作室改造 | 尺厘设计工作室
尺厘设计工作室 ,发布时间2026-01-19 15:14:53
凯旋坊工作室改造
地点:中国上海 长宁
项目类型:改造,工作室,影棚空间
业主:上海卓颖文化传播
设计:尺厘设计工作室
完成时间:2024年11月
面积:760sqm
施工总包:上海雅历设计装饰
摄影:陈颢,王可,尺厘设计
材料:轻质砌块砖,镀锌板,金属烤漆,不锈钢,水磨石,玻璃砖
撰文:门事部
版权声明:本链接内容均系版权方发布,版权属于 尺厘设计工作室,编辑版本版权属于设计宇宙designverse,未经授权许可不得复制转载此链接内容。欢迎转发此链接。

▲ ©chenhao
项目坐落于上海长宁区凯旋坊内一栋传统厂房,已作为业主的办公场地使用近十年之久,空间原始状况为两层:一层为对外开放使用的摄影空间和服务相关工作人员的公共茶歇区;夹层和二层空间用于办公。业主希望在不改变基本布局的前提下对空间进行重新梳理和升级。空间平面为矩形,开敞直接,有着丰富的改造潜力。通过与业主细致讨论和推敲,不断具象化设计的边界和改造的可能性,在对现状空间进行重新组织和划分之后,我们采用适应性的改造手法,重新划分功能布局、规整动线,同时添加趣味性的空间,激发创意办公灵感。
空间的平衡逻辑
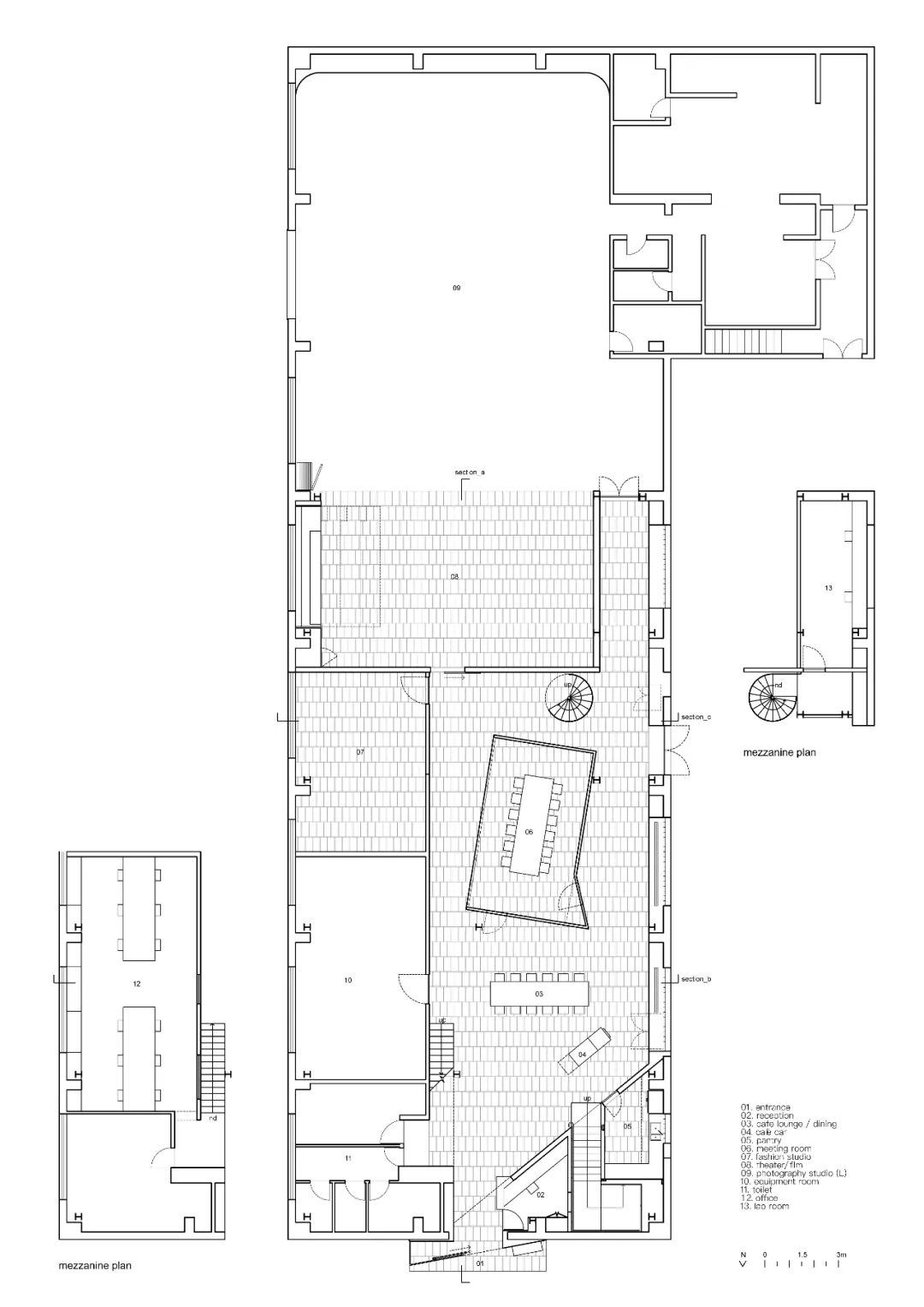
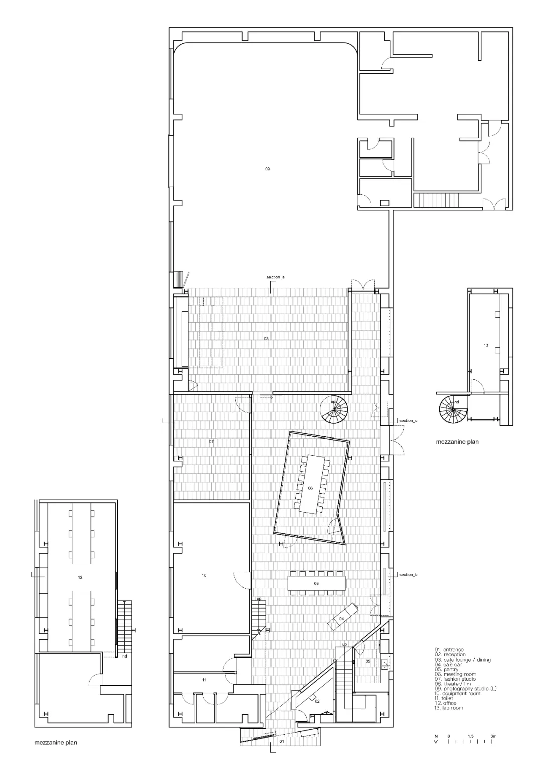
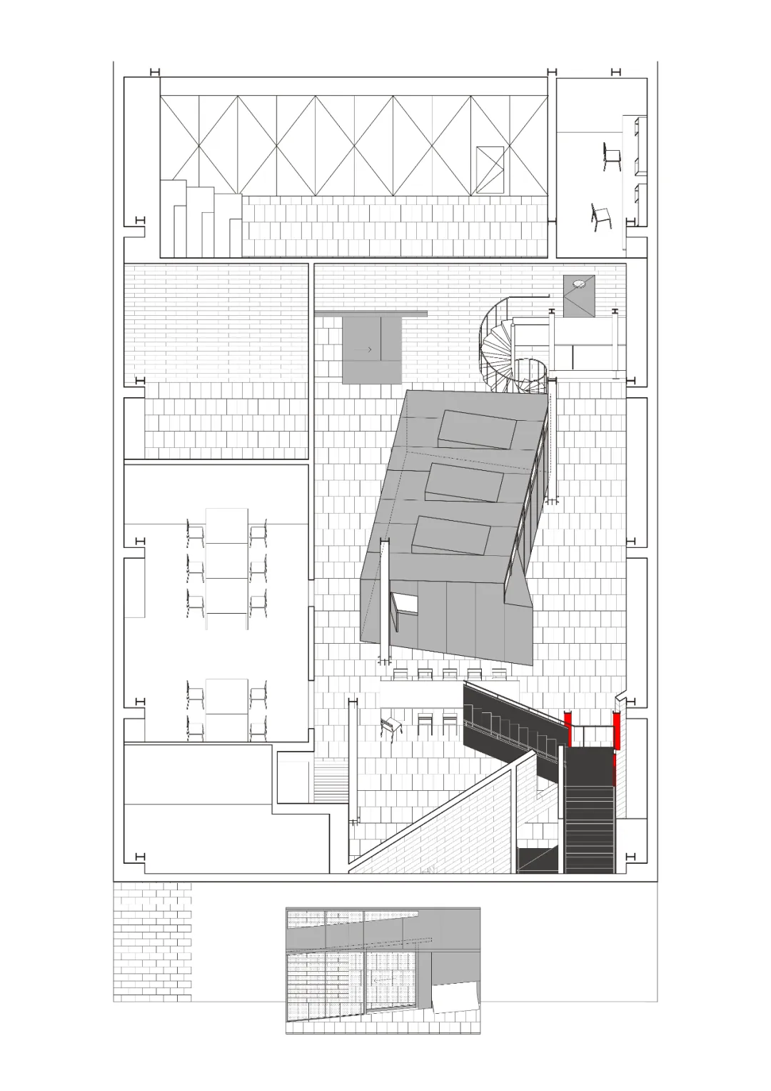
工作室的一层空间主要包含影棚,同时容纳了入口的接待区。从入口到达尽头的影棚空间,我们置入了一个封闭的“盒子”,作为动线从“外向”到“内向”的过渡核心,将公共性较强的前台、茶水间、咖啡会客区和私密性要求更高的器材室、样衣室、剧场和影棚空间串联起来。
“盒子”内是一个可以容纳12人的会议和接待空间。利用现有的结构与物体之间做交错倾斜,通过在缝隙空间中融入物体,实现动线的转换。与现有结构适应交错倾斜退让可安置4.2x7.2m该有的尺度的物体,使其容纳12人尺寸成为可能。物体的交错和倾斜为原本规则的空间增添了活力,同时与现有结构形成了层次关系。物体的形成结合光线的对应。

▲ concept diagram

▲ ©chenhao

▲ ©chenhao

▲ ©chenhao

▲ ©atelier siyu

▲ ©atelier siyu

▲ ©atelier siyu

▲ 1F axon

▲ 1F meeting room diagram
多功能的墙体整合
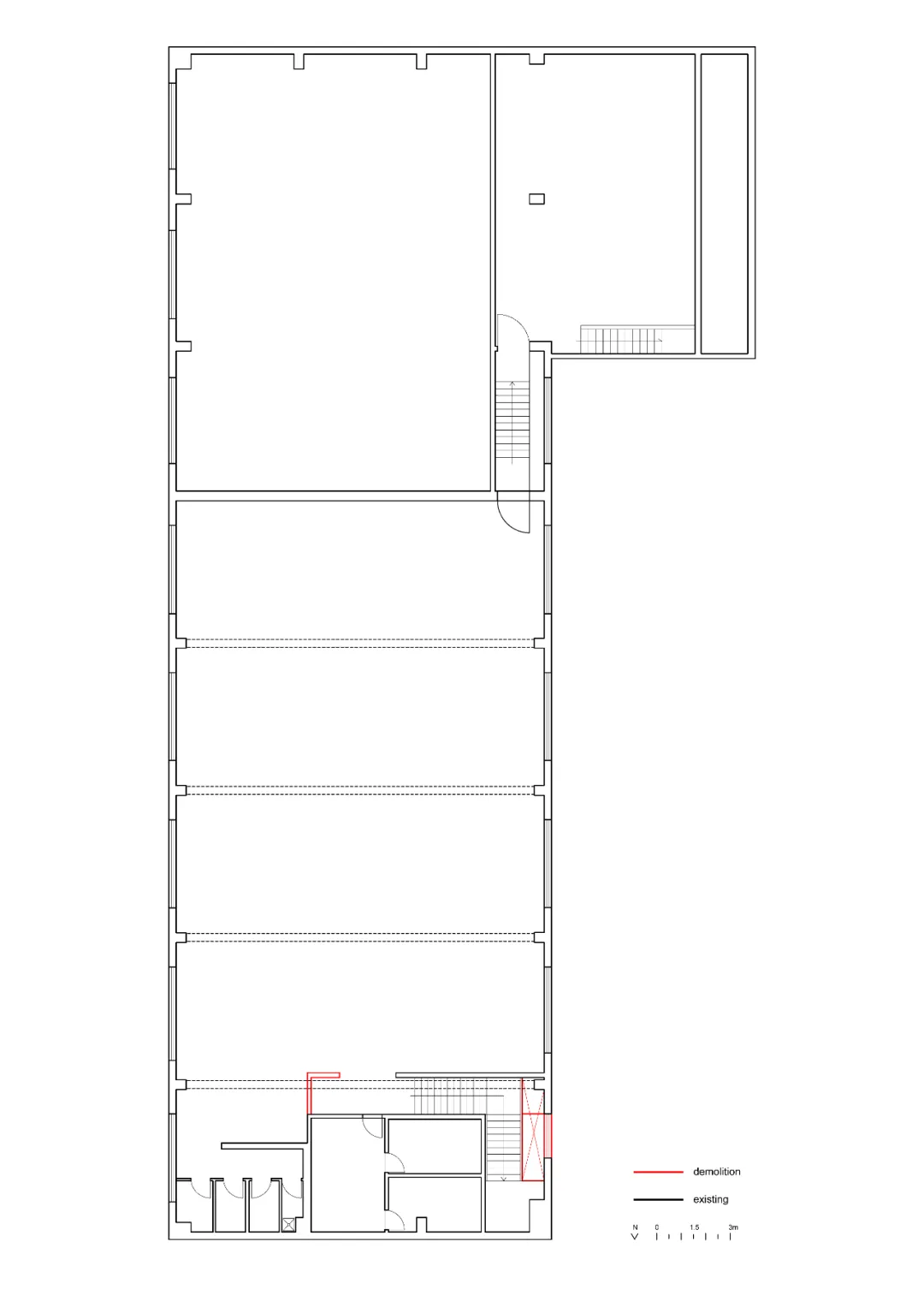
在一层空间有开窗的一侧,原空间厚度为600mm的结构柱显得凌乱且强势,需要重新整合。考虑到保温需求,原计划保留的开窗也需要重新考量。因此在立面设计和功能分区上,结合空调最佳的高度和使用舒适度来布置空调机、垃圾桶和消防箱。经过重新规整,空间更加理性、使用效率更高,核心空间的结构也更加清晰。玻璃砖的应用解决了私密性与采光之间的平衡。

▲ 1F existing

▲ ©chenhao

▲ ©chenhao

▲ ©atelier siyu

▲ ©atelier siyu
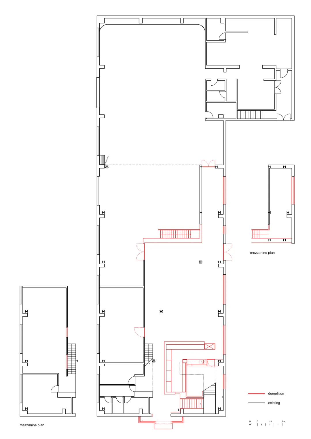
垂直的楼梯景观
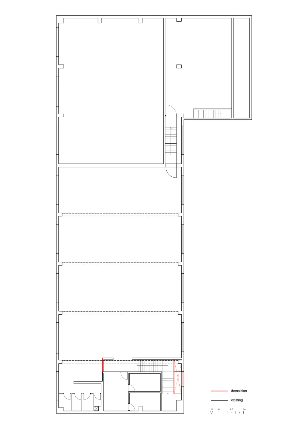
现状空间内的楼梯与一层空间之间缺乏联系,因此我们拆除了一节楼梯,改道通向一层入口处的公共区域,连通出入口与前台区域。同时将楼梯底部的空间设置为茶水间,并采用斜角的轻质砌块砖墙将这部分楼梯、前台和茶水间包裹起来,也在前台和楼梯转角处设置了开窗,制造办公的“框景”。黑色的主体楼梯结构和红色的转角结构在灰白主调的入口空间产生了强烈的视觉冲击力,为理性克制的办公空间带来大胆活泼的氛围。

▲ stair axon

▲ ©chenhao

▲ ©chenhao

▲ ©atelier siyu

▲ ©chenhao

▲ ©atelier siyu

▲ ©atelier siyu
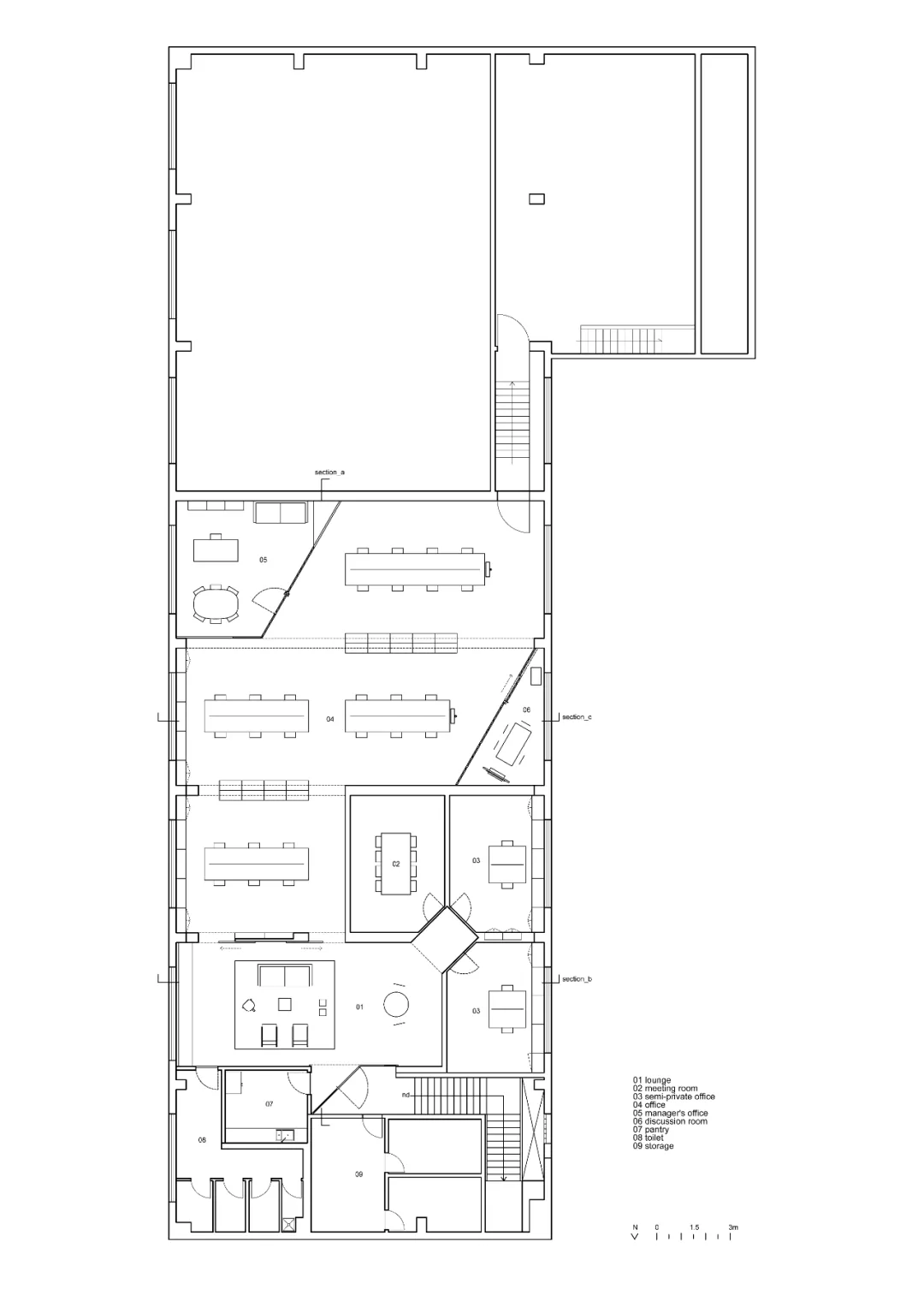
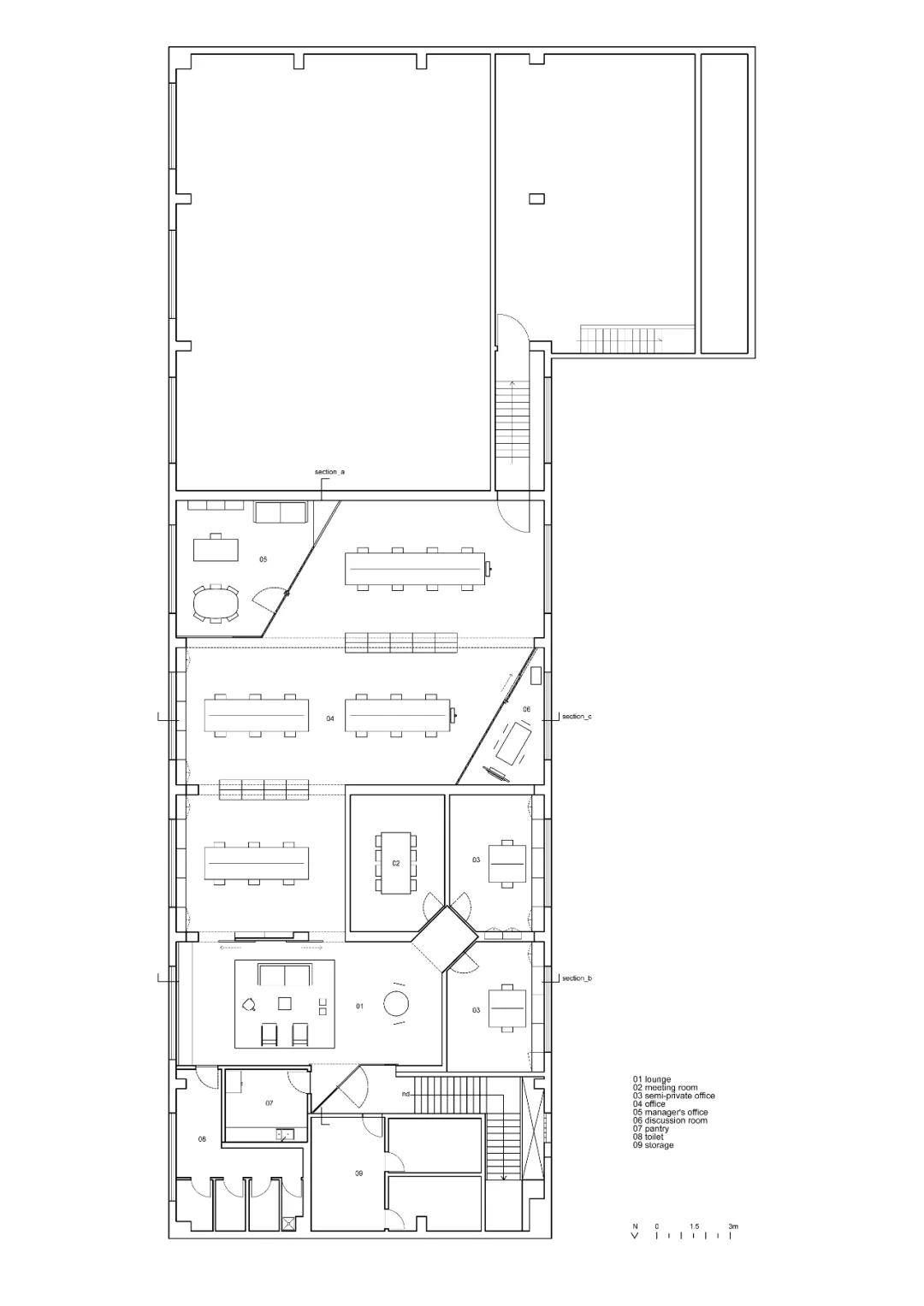
二层的办公空间平面相对完整,但梁架下高度仅为2.3米,在此限制条件下,利用结构轴网将空间重新划分,同时采用不规则角度的几何金属体块作为门洞空间。门洞空间连接着不同的办公功能区,包括灵活工作区、打印间、小型会议室、行政和财务办公室、高层办公区等等。相对私密的功能区采用斜向的玻璃隔断划分,平行于错角旋转的门洞空间轮廓,营造出体感上的几何趣味、但平面上又相对规整的空间逻辑。

▲ ©chenhao

▲ ©chenhao

▲ ©chenhao

▲ 2F axon

▲ ©WK

▲ ©WK

▲ ©atelier siyu

▲ ©atelier siyu
由于现状地面不可预埋线路,我们在工作区增加了立柱,从天花桥架上布线强/弱电到工作桌。顺势利用立柱与原结构梁的重叠丰富了办公区视觉上的多样性。

▲ ©WK

▲ ©atelier siyu

▲ detail

▲ ©WK

▲ 1F demolition plan

▲ 1F plan

▲ 2F demolition plan

▲ 2F plan

▲ overall axon

▲ section

▲ section









































Guest of Honour of Italian Pavilion | Stefano Boeri Interiors
HT House 2020 | 007studio
Minimalism for life | ARCHJOINT

平仄的错合: 凯旋坊工作室改造 | 尺厘设计工作室
Samuel-Paty中学丨ARCHIPENTE

HELSINKI AIRPORT DEPARTURES AND ARRIVALS BUILDING | ALA ARCHITECTS

宁武燕麦工厂 | 卓汉苏文建筑事务所
订阅我们的资讯
切勿错过全球大设计产业链大事件和重要设计资源公司和新产品的推荐
联系我们
举报
返回顶部





