
无锡梁溪医疗器械产业园 | 联创设计 有关工作室
联创设计 有关工作室 ,发布时间2025-03-28 10:15:00
项目名称:梁溪医疗器械产业园
项目地点:无锡市杨岸路、会西路交叉口
建设单位:无锡市梁溪产业发展集团有限公司
建成时间:2024年12月
用地面积:25000㎡
建筑面积:62500㎡
建筑结构:钢结构
方案设计:联创设计 有关工作室
主创设计:陈伟鹏
方案团队:王谦、孙佳格格、陆逸、李思言、曾玉明、林磊、刘怡宁、朱厉、程薇
项目管理:联创设计 城市更新设计研究院
管理团队:宣磊、汤彬彬、郭李婵
EPC总包及施工图设计:中建二局第二建筑工程有限公司
总包团队:李笑强、肖泰、赵志龙、张小庆、李晓锋、邓龙君、朱时忠、李志良
设计咨询:中国建筑上海设计研究院有限公司
咨询团队:李东辉、周靖、吕罡、江娟、宋罕宇、吴学义、彭磊、龚旭东、游杰、曹佳伟、张庆男、赖菲、王晓椰、钟璐
幕墙深化设计施工:江苏恒尚节能科技股份有限公司 朱占中
建筑摄影:Mlee、UDG 有关工作室
版权声明:本链接内容均系版权方发布,版权属于 联创设计 有关工作室,编辑版本版权属于设计宇宙designverse,未经授权许可不得复制转载此链接内容。欢迎转发此链接。
工业建筑往往占据着较大的用地和体量,设计师除了满足生产功能以外,是否能还为城市形象和城市空间有更积极的提升作用?
▼主体形象,main image © Mlee

▼运河之畔,on the banks of the canal © Mlee

运河边的工业片区
项目是无锡市梁溪区首批工业上楼项目,定位为集制造、加工、研发、展示于一体的综合性医疗器械产业园区,建成后补齐梁溪大型高端医疗装备产业的空缺,推动产业集群发展成型,助力无锡市锻造“工业都芯”及高质量发展。
▼工业几何之美,the beauty of industrial geometry © Mlee

▼漂浮感和未来感,floating and future © Mlee

▼第六立面的泛光,the sixth facade’s floodlight © Mlee

项目周边有京杭大运河、京沪高铁线、车站、码头,有各个时期,各种规模的工业厂房,这些厂房或是自持,或是出租,或是整体式,或是分栋式,或是大而低的,或是小而高的,都根据自身的运营逻辑在进行着生产,整个片区充满着一种混合的活力。我们希望新的建筑在满足基本功能的同时,也能呈现出富有时代特征的风貌,促进整个片区的形象提升。
▼原始场地,original site © UDG 有关工作室

▼片区建筑尺度对比,comparison of scale © UDG 有关工作室

▼周边工业建筑,surrounding industrial buildings © UDG 有关工作室

▼运河熙熙攘攘,canal scenery © Mlee

▼项目与周边,project and surrounding areas © Mlee


▼遥望主城区,looking at the city from afars © Mlee

▼总平航拍,aerial photographys © Mlee

模式创新
医疗器械生产除了部分涉及乙醇等液体的项目外,大多数细分领域具备“工业上楼”条件。本项目定位为高精尖轻型生产研发产业园,在对相关类型的生产模式进行研究后,我们认为六层的层数是相对合适的,太低的话达不到开发强度要求,太高的话将对运河沿岸有过大的压迫感,且不便于生产。
▼模式创新,innovation of patterns © UDG 有关工作室

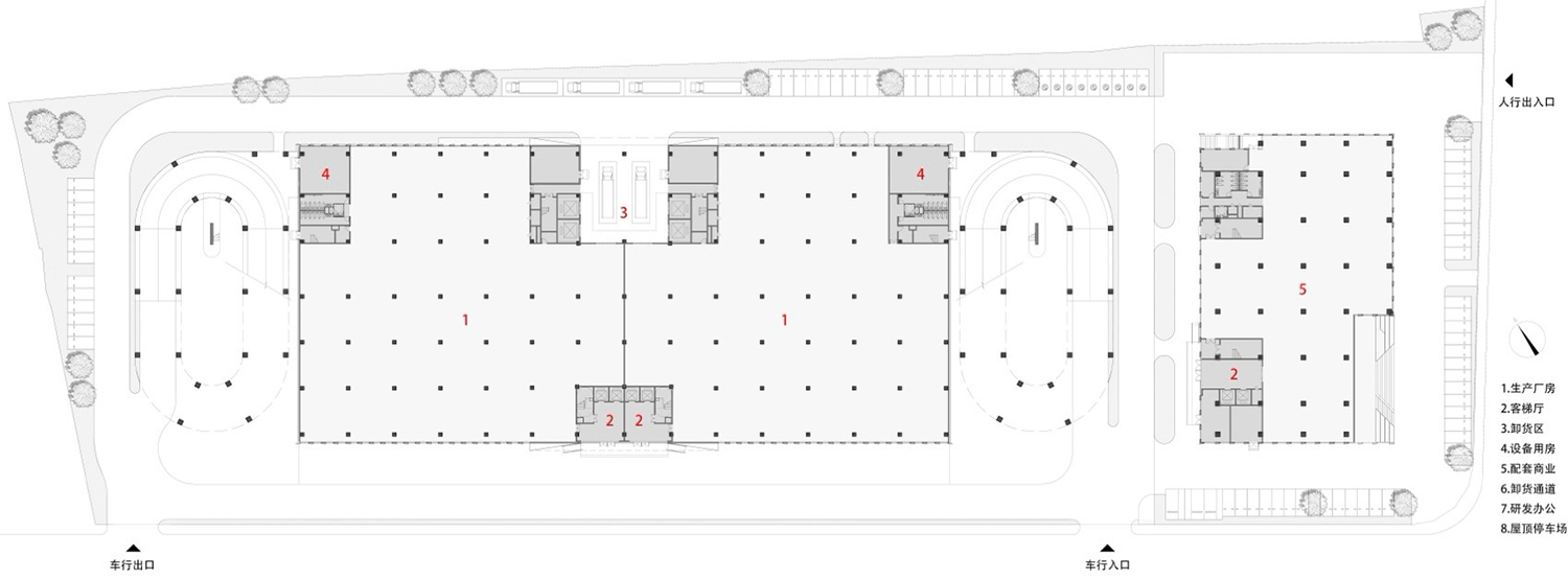
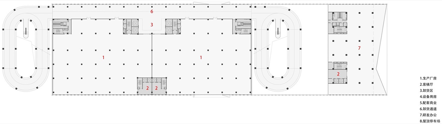
秉承“高效开发,模式创新”的理念,对传统园区中的组织方式和交通动线进行了一定的创新。作为高层厂房,设计在狭长的基地中规划了两座厂房,1#厂房侧重于生产制造,2#厂房侧重于配套研发,两者通过外墙联系在一起,呈现出富有机械感的整体形态。
▼生成过程,generation process © UDG 有关工作室

▼货运动线分析,analysis of freight movement © UDG 有关工作室

▼垂直交通分析,vertical traffic analysis © UDG 有关工作室

在1#厂房的两侧有两个单上单下的旋转坡道,可供中小型货车直接运货至各层,提升上部楼层的使用便利性,也加强了各层上下游之间的联系,这和传统的只通过货梯进行垂直运输的方式相比,提升了每层的可达性,规避高楼层带来的价值缺失。小客车也利用该坡道在屋面上停车,减少了地下室开挖,加快了施工进度。
▼主要街景,main street views © Mlee


工业之美
建筑希望体现出工业特有的美感,整体呈现出干净通透的现代气质,局部采用几何对比及材料对比,丰富视觉观感,避免过于“高冷”。不同部位的建筑材料与功能相对应,有不同的设计逻辑:主体采用间隔的铝板幕墙和玻璃幕墙,作为统一的基底元素,旋转坡道采用橙色金属漆,和橙色铝单板景框共同作为跳脱元素,在一片工业元素中起到活跃立面的效果,避免过于单一。
▼幕墙系统,curtain wall system © UDG 有关工作室

▼高层墙身,wall details © UDG 有关工作室

▼多层墙身,wall details © UDG 有关工作室

▼对坡道的半包裹,half package for the ramp © Mlee

▼规律和突变,regularity and mutation © Mlee



▼运河之窗日景,window of the canal © Mlee

▼运河之窗夜景,night view of the canal window © Mlee

▼沿街形象,image along the street © Mlee

▼园区内部场所,internal space of the park © Mlee


▼园区内部休憩场所,rest areas within the park © Mlee

▼玻璃幕墙的泛光照明,flood lighting for glass curtain walls © Mlee

▼内透玻璃,transparent glass © Mlee

▼玻璃质感,glass texture © UDG 有关工作室

在方正的框架和旋转上升的坡道之间,通过坡道的钢柱外挑桁架,承托幕墙龙骨,反映出真实的构造关系。坡道的圆弧在日光之下形成逐渐变化的光影,户外钢梯作为穿插物结合在其中,暖色与冷色形成对比,进一步避免了过于冰冷的工业感。方与圆,冷与暖,光滑与粗糙,竖向与横向,随着人、车、货的流线在不断变换着。
▼坡道尺度分析,slope scale analysis © UDG 有关工作室

▼环形坡道和方形厂房,circular ramp and regular factory © Mlee

▼循环而上的坡道,loop up ramp © Mlee

▼坡道内景,interior view of the ramp © UDG 有关工作室



▼坡道内的光影变化,the changes in light and shadow © Mlee


▼光影痕迹,light and shadow traces © Mlee

▼坡道外挑幕墙,ramp outward overhanging curtain wall © Mlee

生产空间
1#厂房为6层叠加式厂房,每层分为两个单元,可分可合。面积、层高、柱网、荷载、疏散、防火措施等都在合理的范围之间,既符合生产线要求,也考虑减振隔震,可满足各种生产的要求;同时预留足够的货梯、卸货平台、设备管井,在场地及周边综合解决废气、废水、废液等要求。
▼生产单元分析,production unit analysis © UDG 有关工作室

▼各尺度生产线分析,production lines at various scales © UDG 有关工作室

▼厂房内景,factory interior view © UDG 有关工作室


东侧的运河之窗,结合室内的展示研发等功能,采用T型精制钢立柱,横向不设横梁,面板采用全超白中空夹胶玻璃,形成通透敞亮的效果。
▼运河之窗墙身,partial building wall details © UDG 有关工作室

▼通透的运河之窗,transparent window of the canal © UDG 有关工作室

▼阳光漫入,sunlight pours in © UDG 有关工作室

建筑部件结合货运体系进行设计,各层的吊装平台结合立面景框设置,在满足使用的前提下,也成为了造型的点缀物。各层货运通道采用不同颜色的质感涂料进行粉刷,有效的提升了各层的可识别性,在标准化中用较低的成本实现了个性化。
▼货运通道分析,freight channel analysis © UDG 有关工作室

▼首层货运入口,first floor freight entrance © Mlee

▼空中卸货部位,unloading location © Mlee

▼空中卸货部位,unloading location © UDG 有关工作室

▼颜色区别层数,color distinction layer © UDG 有关工作室

▼吊装口作为景框,lifting port as a frame © Mlee

城市空间
园区不设置围墙,对外部开放,2#厂房下部设置台阶,形成“叠石曲径”的空间意向,为整个片区提供良好的城市空间,顶部的活动平台也是良好的露天活动场所,兼具公共性和私密性。
▼屋顶平台,roof terrace © Mlee

▼朝向街道,facing the street © Mlee

▼工业质感,industrial texture © Mlee

▼之形走道与朝向街道的休闲台阶,walkways and leisure steps © Mlee

▼转角开放空间,corner open spaces © Mlee

▼V型柱,V-shaped pillar © UDG 有关工作室
空中通道没有进行货运的时候,是每层良好的活动场所,在屋面上的停车场,也是可以远眺运河景观的活动平台,旋转坡道中间还有两座钢梯进行上下联系,创造多样化的休憩场所。此外,在各个角落也设置了各种尺度的架空、休憩空间,满足园区内人群使用。夜景结合吊顶设置“第六立面”,进一步彰显了建筑的科技感和未来感。
▼环通走道,loop walkway © UDG 有关工作室

▼屋顶停车位和光伏遮阳板,roof parking spaces and photovoltaic sunshades © UDG 有关工作室

建筑采用了钢结构,只用了一年左右的时间就完成了整体的建设。
▼建造过程,construction process © UDG 有关工作室


▼一层平面图,first floor plan © UDG 有关工作室

▼三层平面图,third floor plan © UDG 有关工作室

▼屋顶平面图,roof plan © UDG 有关工作室

▼立面图1,elevation © UDG 有关工作室

▼立面图2,elevation © UDG 有关工作室

▼剖面图,section © UDG 有关工作室











































































Moruleng Cultural Precinct | Office 24-7 Architecture
VEERMATA JIJABAI TECHNOLOGICAL INSTITUTE (V.J.T.I) Student Housing | Mobile Offices
Dolor y Gloria | Alberto Pizzoli Architetto
杭州智慧网谷创新园 | 联创设计 有关工作室
上海嘉定宝龙中心丨联创设计 有关工作室
苏州千灯石浦邻里集市及喜宴中心 | 联创设计 有关工作室
Samuel-Paty中学丨ARCHIPENTE

HELSINKI AIRPORT DEPARTURES AND ARRIVALS BUILDING | ALA ARCHITECTS

宁武燕麦工厂 | 卓汉苏文建筑事务所
美国IDA国际设计大奖
美国建筑大师奖
BLT Built Design Awards 建筑设计奖
订阅我们的资讯
切勿错过全球大设计产业链大事件和重要设计资源公司和新产品的推荐
联系我们
举报
返回顶部





