
Glarros Oldtown丨Laboratory of Architecture #3
Laboratory of Architecture #3 ,发布时间2024-12-23 09:57:00
Project Details:
Project Name: Glarros Oldtown
Office Name: Laboratory of Architecture #3
Firm Location: Tbilisi, Georgia
Project Completion Year: 2023
Gross Built Area: 4500 M2
Program/Use: Hotel
Lead Architects: Dimitri Shapakidze, Irakli Abashidze
Collaborating Architects: Tamar Tekhova, Tata Koiava
Photo Gallery:
Photographer: Giorgi Mamasakhlisi
Materials: Crafting Timelessness with Local Artistry
- Facade: The choice of locally sourced stone for the facade not only pays tribute to Tbilisi's architectural roots but also ensures a sustainable and contextually relevant design. The textured materials add depth and character, creating a visually compelling exterior.
- Interior: The interior narrative is enriched with Arte International's Le Corbusier Dots Collection. This collection not only modernizes the space but also celebrates the intercultural diversity of old Tbilisi. Each dot on the canvas becomes a metaphor for the diverse stories converging within the hotel's walls.
- Walls: Elitis Walls Collection becomes a canvas for storytelling, blending ethnic and cultural elements into the design. The choice of these wall coverings transforms the space into a gallery of narratives, each telling a unique tale of the region's history.
Details:
- Structural Engineering: Cubicon (Company)
- Construction: Neocon (Company)
- Mosaic Artistry: Davit Mtchedlishvili's
Furniture and FF&E:
The choice of furniture reflects a commitment to quality and aesthetics:
- Arte International - Le Corbusier Dots Collection: Each piece serves as an artistic punctuation mark, contributing to the narrative of the space.
- Moroso: The Moroso furniture adds a contemporary touch, creating a dialogue between tradition and modernity.
- Elitis - Walls Collection: Elitis wall coverings become not just decorative elements but storytellers, enriching the space with cultural narratives.
版权声明:本链接内容均系版权方发布,版权属于 Laboratory of Architecture #3,编辑版本版权属于设计宇宙designverse,未经授权许可不得复制转载此链接内容。欢迎转发此链接。
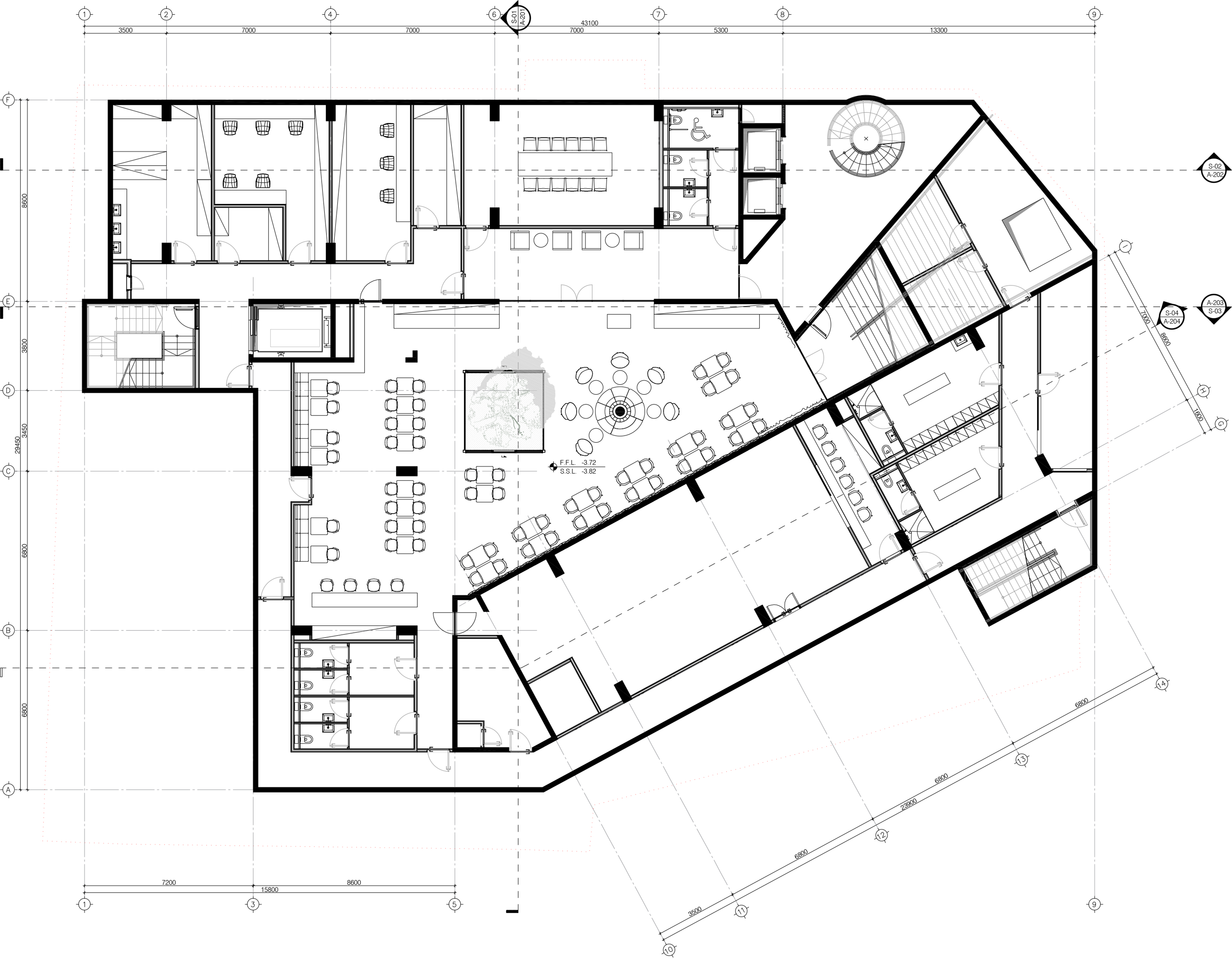
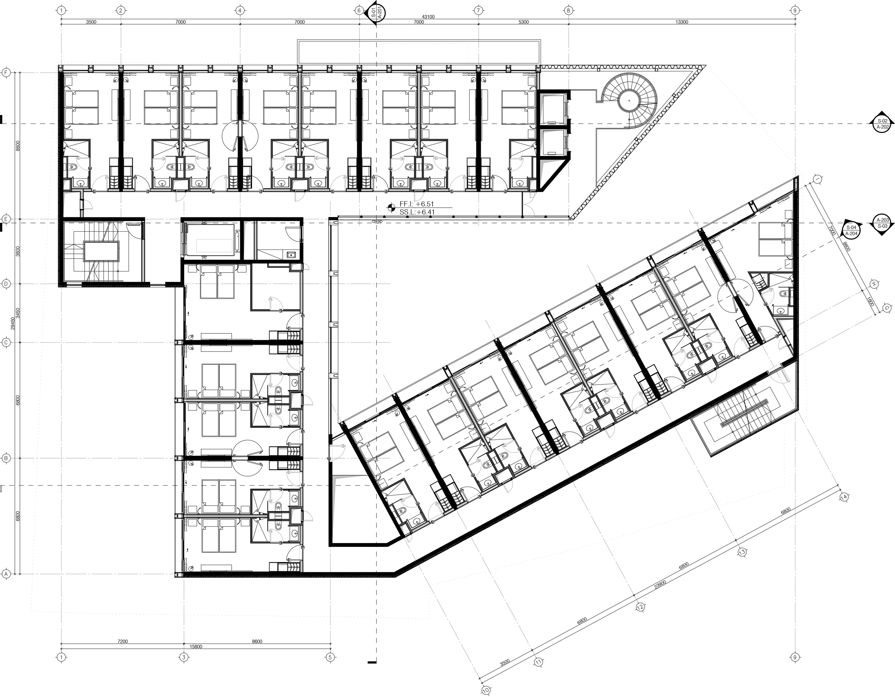
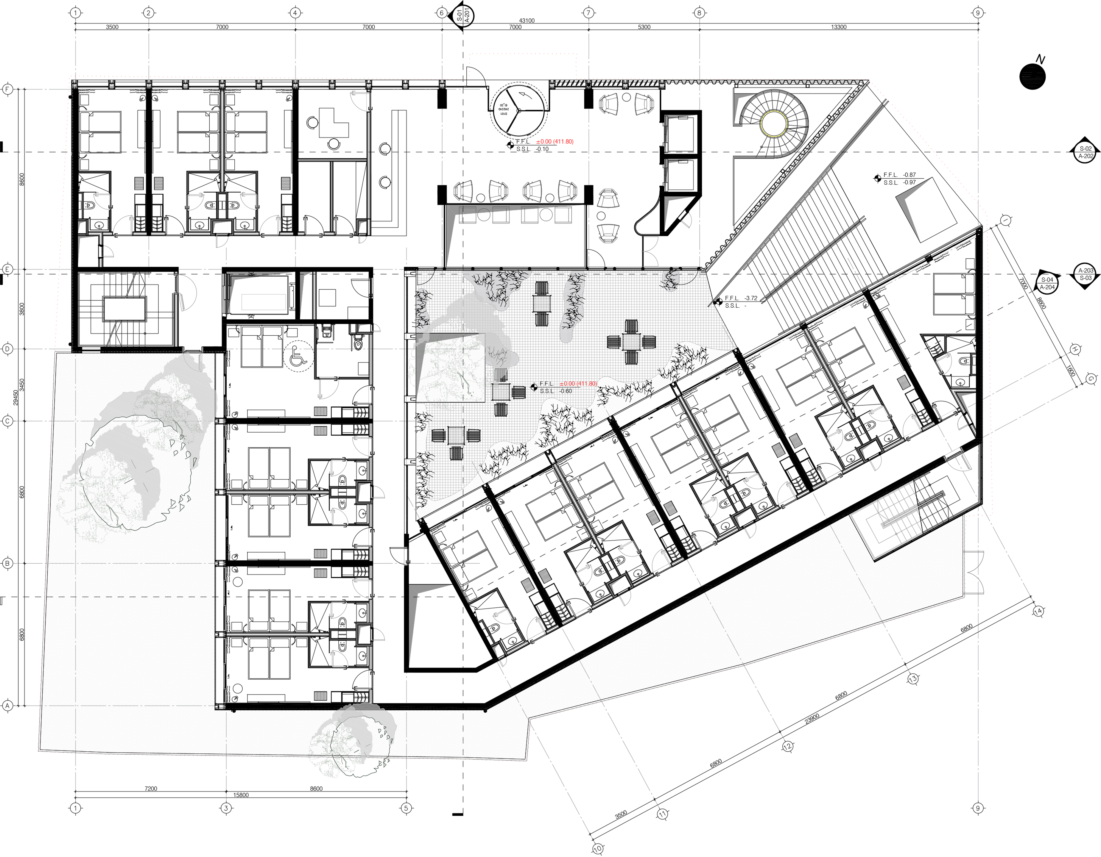
A Living Chronicle
Situated within the historic confines of old Tbilisi, the new hotel occupies a space of significance. This winding thorough road, recognized as the "street-square," stands as one of the city's most ancient vestiges. It served as a vital conduit for numerous historic merchant caravans and artisanal streets.
Simultaneously, it functions as both a bustling transportation artery and a communal gathering area. Within its bounds, an array of public functions coalesces, forming a tapestry of ethnic, religious, and intercultural diversity. This intricate mosaic serves as a defining feature, subtly woven into the core of the building, which itself embraces the mosaic style reminiscent of the 1970s.
The core objective guiding the design of the hotel's architecture and interior is to introduce a new dimension to this historical tapestry, seamlessly integrating and reflecting the vibrant milieu. Taking the place of a 1980s administrative building, the new structure emerged.
The rationale behind the former building's demolition stems from the realization that transforming it into a full-fledged hotel would necessitate expansion, potentially disrupting the scale of the historic surroundings. In contrast, the new edifice perpetuates the architectural heritage of the old city. It echoes the tradition of structures that mirror the sharp corners where ancient streets intersect. From these vantage points, one can simultaneously appreciate the imposing facade facing the street and the traditionally adorned inner courtyard.












































京都嘉佩乐酒店 | 隈研吾建築都市設計事務所
Facilities for Central Agency for the Reception of Asylum Seekers | OMA
Tiffany Façade Beijing | MVRDV

Glarros Oldtown丨Laboratory of Architecture #3
汤山星空餐厅丨孟建民本原设计

RETAIL DESIGN FOR HUMAN HORIZONS丨GRAFT
塞伦斯 · 密境民宿 | 無隐建筑
订阅我们的资讯
切勿错过全球大设计产业链大事件和重要设计资源公司和新产品的推荐
联系我们
举报
返回顶部





