
孤岛浮舟:舟山柴山岛托老所丨line+
line+ ,发布时间2024-12-17 09:54:00
项目信息项目名称: 白沙港村托老所
建筑、室内、景观设计:line+建筑事务所
主持建筑师/项目主创:孟凡浩
项目建筑师:何雅量
设计团队:徐一凡、胥昊、王炯皓(实习)(建筑),金煜庭、范笑笑、叶鑫、徐以唱、金凯迪、张玮轩(实习)、陈寒熙(实习)(室内),李上阳、金剑波、饶非儿、苏陈娟(景观)
驻场设计师:徐一凡、徐以唱、叶鑫
业主:舟山市普陀区白沙岛管委会
项目策划:朱晓鸣、赵利军
节目合作方:上海东方卫视梦想改造家
施工图合作单位:三峡大学建筑设计研究院
施工总包单位:浙江昌屹建设有限公司
现场施工总协调:赵利军
导视设计:M.TP 104
软装设计:杭州异合空间设计
项目位置: 浙江舟山,柴山岛
建筑面积: 799㎡
设计周期:2023/6-2023/9
建设周期:2023/9-2024/5
结构:钢筋混凝土框架结构
材料:混凝土、钢材、水洗石涂料、肌理涂料、哑光不锈钢、木纤维板、毛石
摄影:存在建筑-建筑摄影、line+
感谢赞助品牌
外立面水洗石:特丽宇
外立面木纤维板:克姆伍德
门窗:墅标门窗
室内涂料:立邦涂料
室内厨电:林内
室内木作:墅湃家居
瓷砖地砖:东鹏瓷砖
灯光灯具:企一照明
空调地暖:约克空调
卫浴:恒洁卫浴
水磨石,岩板:东星
室外座椅:宁波禾隆新材料
版权声明:本链接内容均系版权方发布,版权属于 line+,编辑版本版权属于设计宇宙designverse,未经授权许可不得复制转载此链接内容。欢迎转发此链接。
“将一所废弃小学改造成一座托老所,是低生育率和人口老龄化大背景下的一种功能置换策略。我们希望通过空间改造,为96位海岛留守老人塑造属于他们的精神家园,唤醒他们沉淀在时光中的温馨回忆。”
——孟凡浩

在舟山群岛的怀抱中,柴山岛如同一颗被时光遗忘的珍珠。这个曾经渔业繁荣的渔村,见证了数百艘渔船满载而归的盛景。而随着渔业资源保护,过度捕捞的时代已经过去,年轻一代纷纷离岛寻找新的机遇,这里逐渐沦为了一座“孤岛”。岛上仅存的96位老人,成了这片土地最后的守望者。
△ 柴山岛风貌
随着人口向城市外迁,乡村日渐凋敝,留守老人的养老问题也日益凸显。在老龄化趋势加剧的背景下,乡村养老服务成为治理的当务之急。为解决岛上老人的医养护理需求,line+联合创始人、主持建筑师孟凡浩受舟山市普陀区白沙管委会委托,将一所小学,设计改造成一座托老所。作为line+的首个公益项目,我们期冀这座托老所能成为海岛的一盏明灯,驱散老人的孤独,为他们提供一个兼具公共社交与医养功能的养老家园,让老人们能够安享晚年。

与传统乡村振兴侧重于文旅开发不同,line+以柴山岛留守老人的人文关怀为导向,帮助老人就地养老,为乡村注入生机和活力。通过创造一个拥有共享性公共空间、和谐宜居的生活环境,让他们在宁静中重拾温馨记忆,将托老所打造成连接老人与社区的桥梁,回应在乡村提供公共性养老基础服务的课题探索。
△ 柴山岛鸟瞰


柴山岛隶属舟山普陀区白沙乡,是一座陆域面积 0.88 平公里的悬水小岛。原有建筑地处柴山岛中心区位,是全岛屈指可数的几个公共建筑之一。场地是一栋始建于20年前的小学,并于4年前改造成为临时养老院,因为设施简陋,很少有老人愿意入住。
经由前期调研,团队对场地的现存问题予以了梳理。地形因素致使场地内外高差显著;公共区域狭促,难以契合活动需求;老人居室南向为公共走廊,加剧光照匮乏与潮湿之弊端。上述缺陷致使养老院的实际使用价值低下,不利于老人居住。因此,改造所需要解决的不单单在于建筑物的修缮,更在于空间的重构。
在改造施工过程中,团队面临诸多挑战。柴山岛每日航运次数有限,建筑废料无法及时移至填埋场,只得暂时在岛上空余之处堆积。同时,运输水泥、沙石和钢筋等建材也是棘手难题。岛上道路狭窄且老旧,三千多吨建筑材料只能通过施工队伍分批次小规模运送至现场。

为解决这一问题,我们与业主团队一起讨论,决定修建一条贯通至码头的环形道路。同时,结合未来岛屿的综合开发计划,连接山顶与各区域。所有材料首先集中运抵山顶,再逐步向下配送至指定位置。


柴山岛自然原始,小居古朴,环抱于山与海之间。设计初始,孟凡浩与团队深入岛中,与岛上的老人们紧密交流,了解他们的真实需求,倾听他们的故事。在实地考察中,得知这些老人大部分都是渔民,靠海吃海。回忆往昔,那段青春壮年的时光依旧历历在目。想到过去,如今这些眼神黯淡的老人们,双眼重新焕发神采。
△ 倾听留守老人的需求
图源:《梦想改造家》视频截图

托老所设计灵感源自渔船,其端部形体底面经曲面处理和悬挑,使整体形象更为鲜明,宛如一艘“漂浮”于岛上的船只。以此触动老人的情绪与感知体验,唤醒老人的青春记忆,且以建筑为媒介传递柴山岛的故事。


△ 模型照


改造前托老所住有4位老人,其余岛上老人则居家养老。随着老年人的生活半径会随着年龄的增加逐步缩小,老人更需要聚集性公共空间满足日常、文化和社会交往需求。改造旨在帮助老人与社会建立联系纽带,减少他们的孤独感。

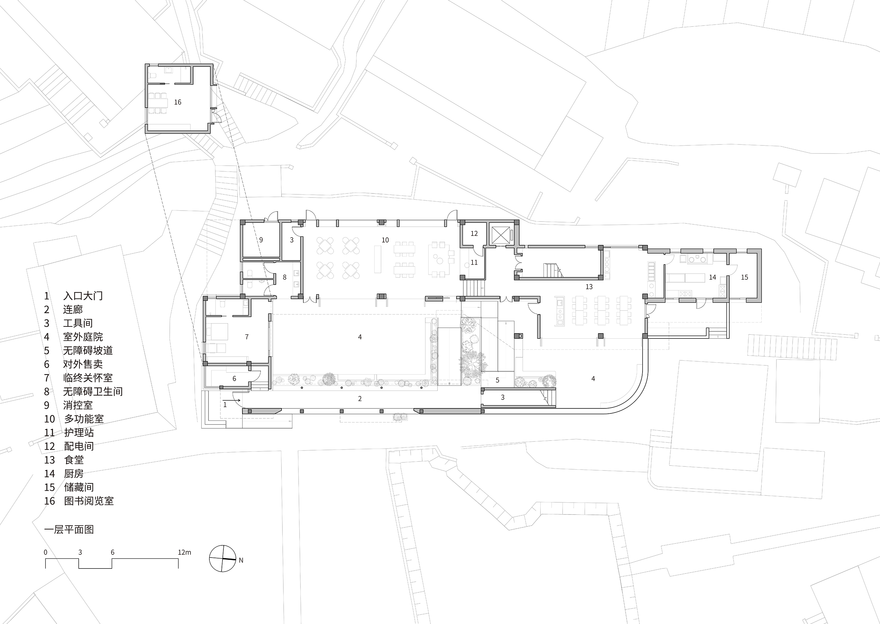
因为用地面积狭小,我们将首层空间全部用于公共空间,临终关怀室、共享食堂、厨房、多功能厅等,开放给岛上所有居民,二层则是养老居住空间。
设置多层屋顶露台,以一条坡道串联首层院落与所有露台,用花池和座椅区隔动线与空间,为老人提供充足的户外活动和停留空间,实现狭小用地下的公共空间最大化和立体化。



流线重组
原托老所依山而建,所占的东西两块台地间有1.2米的高差。若仅抬高西侧地基,从场地外部进入院落内的高差达到近两米,对老人不便。因此,我们保留原台地,将西侧地势低的台地与外部道路相连,确保通行无阻。
△ 改造前院落空间



原院落虽开敞但空间利用率低。为了塑造新的空间层次,我们改变入口位置,优化动线,使用一条连廊将人流引导至中间一层院落空间再进入室内,串联托老所的外部与内部。


开放庭院与多功能厅的边界,在保留院子完整性的同时,增大了户外公共区域与室内的联动性。实现主院落室内外的景观互动,增强托老所的社交性。


厨房与食堂的联动
在一层东侧,我们将场地周边的一栋民居纳入到整体改造范围中,将其与主体建筑连接,共同构建成了一个宽敞明亮的共享食堂和厨房。这一改造不仅为老人们提供了一个更高质量的用餐空间,更是成为了一个活动交流的多功能空间。
△ 改造前餐厅内部空间


屋顶视野创造
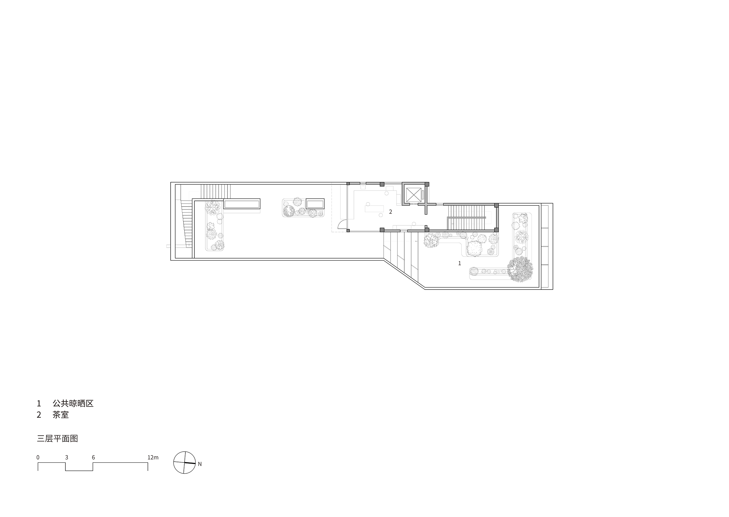
屋顶空间改造加强托老所与岛屿景观联系,拓宽老人视野。屋顶花园预留了天窗,增强二层卫生间的采光,最大限度地增加了光线进入建筑的方式。



围绕天窗还建造了座椅、菜园等景观空间。同时,增设视野开阔的屋顶茶室,丰富了屋顶的活动性和功能性。宽敞明亮的窗户将小岛风景揽入茶室,提供给老人一个自然雅致的休憩交流空间。


对屋面的空间释放,放大了景观势能,扩大实际使用面积。让老人从屋顶视角眺望岛屿和大海,增添慰藉。

针对建筑空间布局不均、功能兼容性差的问题,我们通过区域划分,实现小空间多功能融合,优化医养空间布局。
△ 爆炸分析图
居住区的重塑
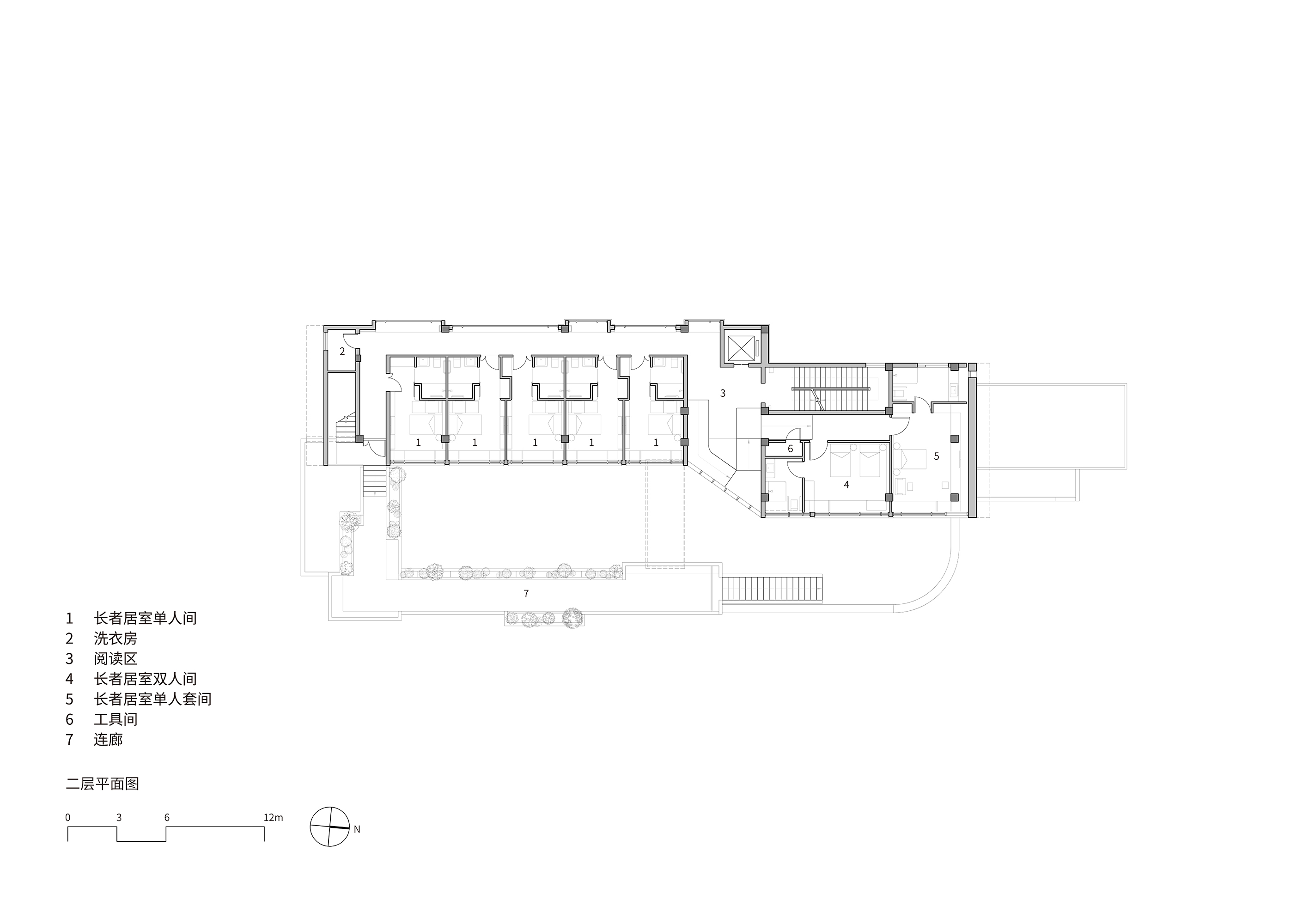
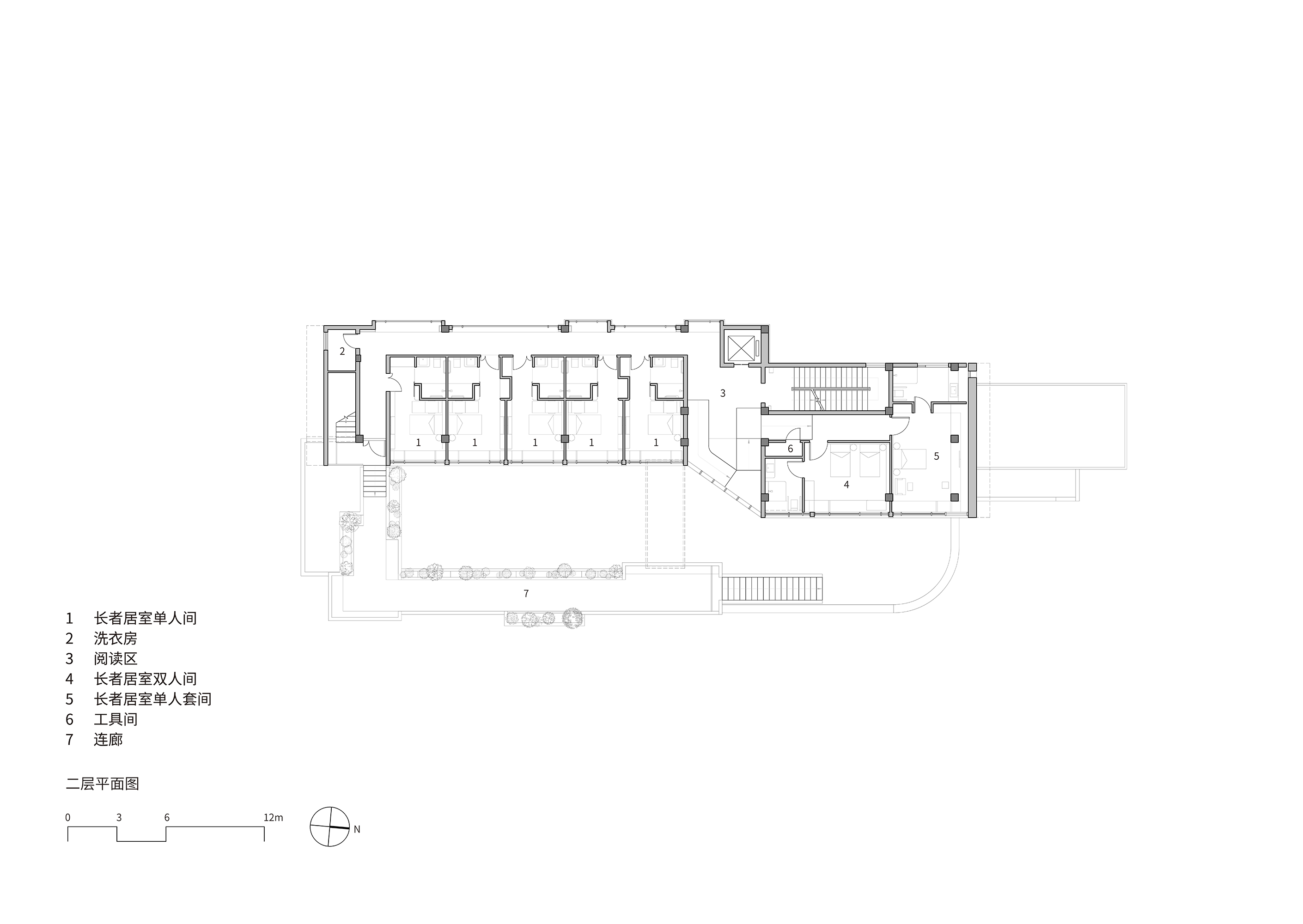
二层原为居住空间,改造前,走廊位于建筑朝阳面,对老人卧室的采光有较大影响。基于此,我们将走廊、楼梯等辅助动线调整至建筑背阴面,而将向阳面留给老人居住,以提供更好的光照,通风和视野。
△ 改造前老人卧室


△ 窗套体系轴测图

原本二层有连接东西建筑的高差区域,不便于老人通行。从而加入一个公共空间,将东西两边标高不同的卧室区分隔开,用无障碍坡道连接。还增设了书吧这类多样化休息、交流空间。书吧将室内空间室外化,让出行不便的老人也能亲近自然,享受岛屿风光。

△ 改造前建筑内部高差区域

适老化提升
安全性是适老化设计的关键,改造目标为打造有适老化细节的建筑空间。原建筑内由于高低地势而建造的陡峭台阶对于养老居住并不合理。因此,改造时移动楼梯间至场地中心,并配置一台可达屋面层的电梯联系各个空间,垂直交通动线的方式解决了老人上下楼的问题。

同时,将室内外全部楼梯踏步放宽改缓,增加扶手适合老人缓步而行。在整体空间中全部采用无障碍通道相连,提高场地的通达性。设置间隔性的座椅辅助于长距离走廊,辅助行动不便老人休息。

△ 改造前内部空间


在老人卧室中强化了适老性细节,更新了专业的护理床和呼救设备提升护老便捷性,并将家具的边角都经过了处理,减少了尖锐的边缘和角落。


原卫生间空间狭小,不满足无障碍设计规范1.5m的轮椅回转空间,因此整改了布局,提高室内无障碍设施的合规性。同时消除卧室与卫生间之间的地面高差,将光面地砖替换为防滑耐摔的水磨石材质,提升了内部空间使用的安全性。
△ 改造前卫生间



我们尊重岛上的场地记忆和村落肌理,为了更好的将建筑融入环境,使用在地元素作为色彩与材料运用的依据。

△ 柴山岛民居立面风貌

红与蓝缘起于渔民为船只涂上新漆之后,总将剩余的颜料涂于自家门窗上,这些色彩凝聚成了特有的居民立面印记。我们将红色和蓝色使用在二层卧室的外部立面以及内部窗台上,也以彩漆木板的形式穿插于交通空间和户外坡道上。鲜明的色彩帮助老人清晰定位空间,区别场地内不同地点。



建筑主体材料选用了水洗石涂料,以其独特的颗粒感赋予建筑表面丰富的肌理效果,显著提升了建筑的质感。入口围墙应用岛上常用的毛石材料,连廊采用钢柱,形成轻与重的对比。丰富托老所的材料层次,呼应在地建筑氛围。


△ 墙身大样

此外,周围老房子中常常将渔网作为入口或者围栏的隔档材料。我们提取这一元素,将连廊和顶层眺望灯塔的防护网的质地仿照渔网样式呈现,赋予材料新的表现力。


柴山岛的老人们与海相依,生于海边、养于海边,也许就是他们最朴实的愿望。深知这份期盼与需求,line+怀着对乡村激活和振兴的关注,投身于这个公益性托老所项目。我们渴盼能让更多人留意到这些弱势群体的生活景况,期冀将其打造成契合养老需求且独具在地特色的空间,为留守老人送上温暖与关怀。

此次项目,不仅是乡村改造设计上的一次探索与实践,更是心灵的一场深深触动与传递。我们联动各行业的精英团队,共同为柴山岛的未来助力。在此,我们衷心感谢所有参与此项目的团队与赞助品牌,正因有你们,柴山岛的浮船之梦得以更臻圆满,孤岛不孤。

项目模型照

技术图纸

△ 总平面图

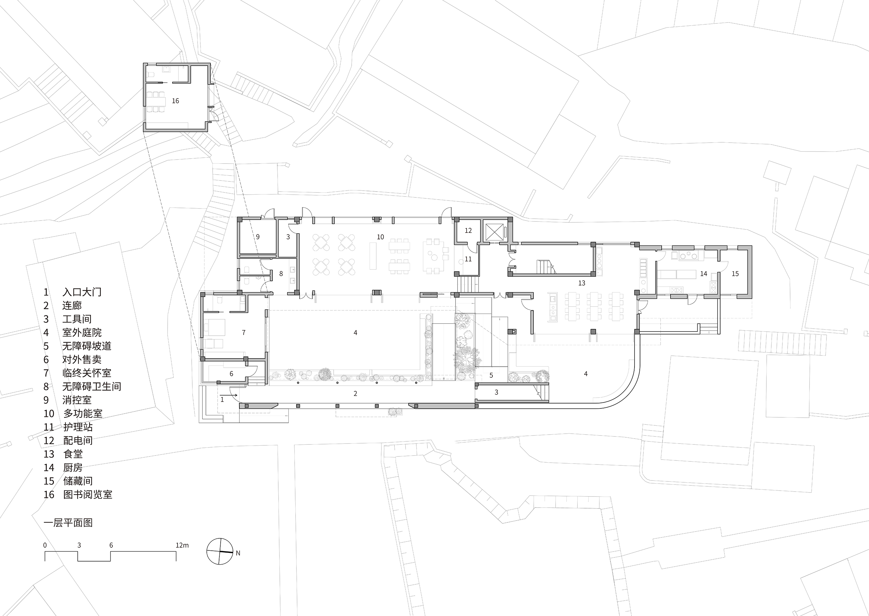
△ 一层平面图

△ 二层平面图

△ 三层平面图

△ 四层平面图

△ 剖面图

















































































隱山林居 | 公羽山松建築師事務所
Ensayo Squalo | BAUEN
Kojima House | Swatt + Partners
杭州滨江新地标,联众智慧企业总部丨line+
成都金融城贝宸S1「空中四重院」实景呈现 | line+
北京和樾玉鸣,东方礼制与西方形制的当代交融 | line+

岱山目的地营造记 | 安道设计
Gyeongdo 岛 - 以“自然”为动力的全新韩国可持续休闲目的地
【空间类.提名奖长名单】设计宇宙大奖DesignverseAwards2024-2025大奖结果公布
意大利THE PLAN设计大奖
订阅我们的资讯
切勿错过全球大设计产业链大事件和重要设计资源公司和新产品的推荐
联系我们
举报
返回顶部





