
LOTTA 苍松店翻新丨如室建筑设计
如室建筑设计 ,发布时间2024-11-25 10:04:00
项目名称:Lotta 苍松店
项目类型:餐饮,零售
设计方:Ruhaus Studio
项目设计:2022
完成年份:2023
设计团队:王艺儒,朱丹丹,高帆,周敏
项目地址:广东省深圳市福田区车公庙苍松大厦建筑
面积:10㎡
摄影版权:Sanif,夏同
客户:Lotta Coffe
材料:铝柱,胶合板
Project Name: Lotta Coffee
Project Type: Dinning, Retail
Design: Ruhaus Studio
Design Year: 2022
Completion Year: 2023
Leader Designer & Team: Yiru Wang, Dandan Zhu, Fan Gao, Min Zhou
Project Location: Cang Song Da Sha, 25 Terra 7th Rd, Futian District, Shenzhen, Guangdong Province, China, 518042
Gross Built Area: 10㎡
Photo Credit: Sanif, Tong Xia
Clients: Lotta Coffee
Materials: Aluminum Column, Plywood
版权声明:本链接内容均系版权方发布,版权属于 如室建筑设计,编辑版本版权属于设计宇宙designverse,未经授权许可不得复制转载此链接内容。欢迎转发此链接。
一场小型商铺的预制装配化实践
一场限时7天的更新
Lotta 苍松店从2017开始营业,是深圳最早的一批精品街头咖啡铺。2022年如室承担了品牌空间的迭代更新工作,在此后的半年时间内不断地打磨产品组合和空间的各种可能性。2023年4月由于设备的老化,突然将苍松店的更新推上了快车道。

门店概览©Sanif
Lotta 源自意大利语,含义是“战斗”,代表着主理人对于未知生活拼搏的勇气和决心。这次的极限翻新对于我们也是一次挑战,也是一次基于持续思考的厚积薄发。

门面©CIVO LAB


立面©夏同_Tong Xia
极致的空间利用
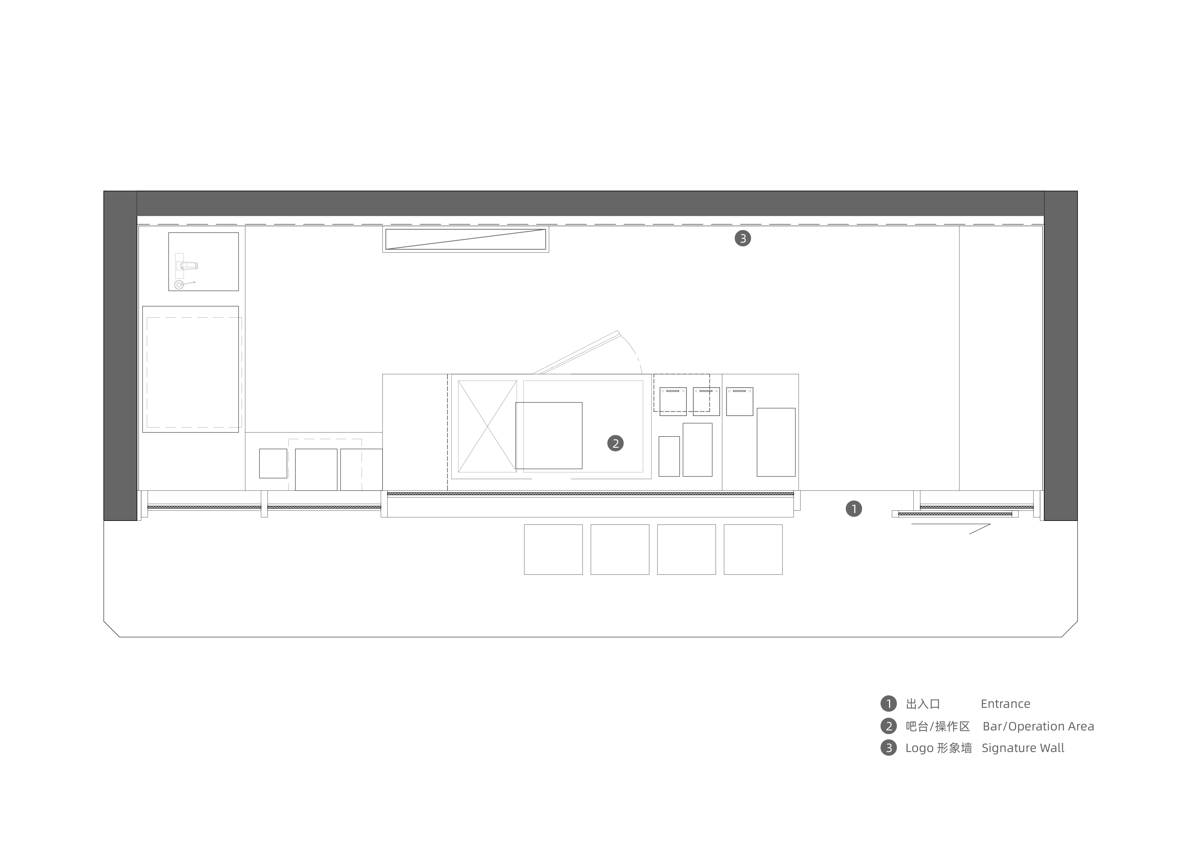
基地面宽5.3m,进深1.8m,总使用面积不超过10平米,属于极小沿街店面。于是对于咖啡吧台的设计不能再局限于平面,而是对空间的立体设计和全方位的利用。通过一套框架体系,完成了立面语言及吊架装置的搭建,并且扩充了空间的临时储物功能。平面上除了满足意式、手冲、特调的全品类出品外,同时由于深圳的夏天气候对户外座位极度不友好,极限条件下还特意留出4个内场座位,让顾客在酷热及风雨天气都可更自在地享受咖啡。

极限条件下的4个内场座位©Sanif

轴测图©CIVO LAB
可交互的外立面
我们将正面尽可能地释放给外部,同时在透过取景框的内立面做简单醒目的VI展示,两者一起形成品牌对外的完整呈现。在吧台设计上将咖啡机旋转,侧对顾客,一方面让顾客能更直观地观察咖啡萃取流程,另一方面强化了咖啡师与顾客进行交流互动的可能性。


促进咖啡师与顾客进行交流互动©Sanif
预制装配式更新
设计借用建筑预制装配的概念,给予施工方充分的异地制作时间,在21天完成了大部分的构件采买、切割和组装工作。从而实现了将现场的真正施工压缩到7天的极限挑战——以4小时为节点,轮转3班工种,保证老店在翻新前能持续经营的状态,给小店的高效翻新提供了全新的范式。


预制装配©夏同_Tong Xia
功能道具
设计定制的两用凳满足多种使用场景,高吧模式满足于日常与咖啡师的交流,横放后则与外场的座位形成围坐交流的街头氛围。

两用凳 GIF©CIVO LAB


两用凳 ©夏同_Tong Xia
节点设计
定制VI蓝色的结构连接件给这次翻新带来更多的趣味性,也是隐藏的品牌线索。

Logo©夏同_Tong Xia
关于游牧系列
游牧系列是如室为了应对消费主义破灭而开发的设计语言,是如室会持续推进的设计线之一。以先期推进研发,后与品牌共同落地的形式开展项目;通过调整设计程序,以保证设计时间和精度,取得设计质量与施工成本之间的平衡。

夜景©夏同_Tong Xia

平面图©CIVO LAB

立面图©CIVO LAB


剖面图©CIVO LAB



















2025-2026 Designverse Awards 设计宇宙大奖 评审团大奖获奖名单(完整版)| 空间 / 产品 / 品牌大事件类 235 家机构上榜
Blurring 2 Attics: two interconnected studios in Poblenou | Bajet Giramé
2025-2026 Designverse Awards 设计宇宙大奖 超越奖 获奖名单(完整版)| 空间/产品/品牌大事件类14家机构上榜
如津诊室深圳首店丨如室建筑设计
OASIZ绿洲:HAUS NOWHERE店丨如室建筑设计
葉外 海岸城店丨如室建筑设计
汤山星空餐厅丨孟建民本原设计

RETAIL DESIGN FOR HUMAN HORIZONS丨GRAFT
塞伦斯 · 密境民宿 | 無隐建筑
订阅我们的资讯
切勿错过全球大设计产业链大事件和重要设计资源公司和新产品的推荐
联系我们
举报
返回顶部





