
焦溪是家小院丨平介设计+远见文旅
平介设计 ,发布时间2024-04-11 09:45:00
项目名称:黄墙里的小酒馆. 焦溪是家小院
策略指导:程宏(大运远见)
完成年份:2023.11
项目面积:340平
项目地点:常州焦溪古镇
业态规划:江苏大运远见文化科技公司
设计单位:平介设计,远见文旅
设计团队:
景观设计:曹开源,肖湘东
建筑、室内设计:李文靖,杨楠,吴江,韩旭彤
业主:江苏大运远见文化科技公司
摄影师:徐英达
版权声明:本链接内容均系版权方发布,版权属于 平介设计,编辑版本版权属于设计宇宙designverse,未经授权许可不得复制转载此链接内容。欢迎转发此链接。
是家小院位于常州焦溪古镇的核心区,原为一处三进民居,由于大部分建筑已坍塌、损毁,现场仅保留一个主体建筑以及残留的黄石半墙。对历史建筑的保护、修缮、活化和利用,是对抗时间和失忆最有效的一种方式。在我们介入前,东南大学建筑设计研究院已对遗留建筑进行了修缮。本案设计希望将小院打造为一个可以连接古今的小酒馆,让一度成为废墟的小院重新焕发生机。在飘着酒香的小巷里逛一逛这里的老房子,走一走康熙年间保留至今的石板路,午后坐在黄石半墙的小院子里欣赏秋色,围炉煮茶,将会成为人们体验这座水乡古镇的极佳方式。
焦溪古镇依龙溪河而建,已有700余年历史。龙溪河沿岸弯拱高耸、麻石横跨、码头密布,荟萃了11处文保单位、26处历史建筑,是当年龙溪河两岸热闹生活留下的深深印记。
▼项目鸟瞰
©平介设计
是家小院得名于“是”这一稀有姓氏,目前全国的是姓人口不足9000人,常州的是姓约占全国是姓总人口的50%,焦溪地区又占到常州的50%。与其他粉墙黛瓦的江南水乡古镇不同,这里的传统建筑大多运用黄石半墙砌筑,这些就地取材的石头来自附近的舜山、鹤山。石头砌成的房子不仅更加坚固,而且可以呼吸,即使洪水过后,屋内的水汽也可以从缝隙间散去,不易发霉。
▼小院中的黄石墙遗迹
©平介设计
小院入口对保留的建筑墙体进行保护与展示,六间五柱,大木构架为抬梁穿斗混合式,具有江南民居建筑的典型特点。
▼小院入口

©平介设计
▼前院鸟瞰
©平介设计
前院空间原是建筑的厅堂,倒塌后形成了较为开阔的院落空间,现在作为酒馆的的外摆区。
▼前院空间

©平介设计
植物的选择上使用朴树、鸡爪槭、大吴风草等江南园林中常用的植物,衬托宁静古朴的氛围。

©平介设计
▼前院夜景


©平介设计
▼酒馆室内

©平介设计
室内空间完整保留了原始建筑的结构、门窗及铺地。

©平介设计
▼室内座椅区

©平介设计
贯穿空间的门窗作为链接室内外空间的“纽带”,上午阳光可以从柱子与墙体中间的缝隙钻进来到室内区域,营造特别的阴翳美感。
▼酒馆二层

©平介设计
我们在保留后院遗存的黄石墙垣的基础上,增加了平台、阶梯、座椅等元素,以满足酒馆业态的使用需求。新业态的植入使这片废墟重获新生,让遗迹不再是仅供观看的展品。
▼后院空间

©平介设计
▼保留的老灶台

©平介设计
老灶台延续了过去的烟火气,如今虽野草丛生,但也别有意趣。




©平介设计
▼从窗洞向外看

©平介设计
▼从后门回看小院

©平介设计
▼砖墙细部
©平介设计
▼雪中的小院


©远见文旅
▼轴测图

©平介设计
▼剖面图

©平介设计
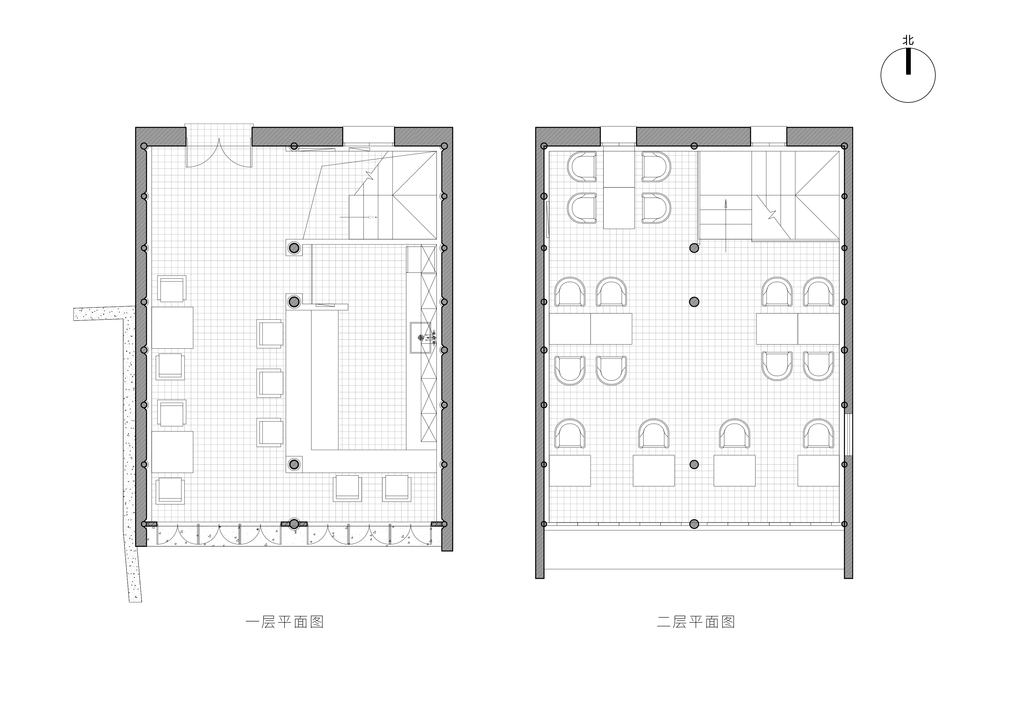
▼酒馆平面
©平介设计



























京都嘉佩乐酒店 | 隈研吾建築都市設計事務所
Facilities for Central Agency for the Reception of Asylum Seekers | OMA
Tiffany Façade Beijing | MVRDV
高峰禅寺下的栗林小院丨平介设计

虞山公园文旅配套建筑丨平介设计
入海码头海鲜餐厅——城市中的精神渔港丨平介设计
汤山星空餐厅丨孟建民本原设计

RETAIL DESIGN FOR HUMAN HORIZONS丨GRAFT
塞伦斯 · 密境民宿 | 無隐建筑
订阅我们的资讯
切勿错过全球大设计产业链大事件和重要设计资源公司和新产品的推荐
联系我们
举报
返回顶部





