仁恒·海上源 | goa大象设计
goa大象设计 ,发布时间2022-10-27 09:55:54
项目名称:仁恒·海上源
所在地:上海市杨浦区
设计/竣工:2018/-
建筑面积:285,000㎡
建筑设计:goa大象设计
景观设计:TROP景观事务所
施工图设计:天华建筑设计有限公司
摄影版权:CreatAR Images、河狸景观
版权声明:本链接内容均系版权方发布,版权属于 goa大象设计,编辑版本版权属于设计宇宙designverse,未经授权许可不得复制转载此链接内容。欢迎转发此链接。
版权声明:本链接内容均系版权方发布,版权属于goa大象设计,编辑版本版权属于设计宇宙designverse,未经授权许可不得复制转载此链接内容。欢迎转发此链接。
Copyright Notice: The content of this link is released by the copyright owner GOA. designverse owns the copyright of editing. Please do not reproduce the content of this link without authorization. Welcome to share this link.
联结城市“孤岛”,释放边界活力
一次开放社区的前瞻实践
一场都市社交生活的激发实验
在过去三十余年的城市化进程中,“自封闭”小区作为顺应时代的产物,在住宅开发中占据主导。住宅的价值体系长期以来偏于内向化,小区如何在提供内部利益的同时完成对城市的构造,长期以来是被忽视的话题。伴随城市化进程的深入,错综复杂的地块周边要素、复杂的社会条件,成为越来越多住宅项目的设计前提。住宅如何回应城市,如何贡献于街道,住宅的价值评判体系是否纳入新的考量因素?这些问题亟需实际有效的设计策略予以回应。


△ “鲜活社区”主张 ©goa大象设计
基于近年来的住宅实践经验,goa大象设计提出“鲜活社区”的价值主张,回应“构建住宅与城市关系”的议题。仁恒·海上源项目是该主张的蓝本项目。项目样板段于2021年亮相,与常规住宅项目不同,样板段并非单纯的户型样板房,而是一条盘踞于地块南边界的商业街街段,给人以“高品质街区”的美好想象。样板段传达出的新鲜、富有时代感的社区生活面貌,在整个上海市域内引起强烈反响。正面的社会反馈返过来激励设计实践者回顾、复盘、分享项目的点滴历程。

△ 主入口效果 ©goa大象设计
01 从住区价值到城市价值
项目基地位于上海内环之内、杨浦区滨江生活带成熟核心区。基地距离地铁站不足500m,南侧是杨浦区社区级公园“江浦公园”,东侧是杨树浦港滨水景观带,隔河相望为杨浦区工业厂区城市更新地块。周边要素虽完备而丰富,却彼此不相连贯,呈现为点状散落的状态。

△ 城市要素分析 ©goa大象设计
建筑师选择以“城市设计”的视角切入工作。设计的初始目标,是连缀周边碎片化的城市空间,完善整个片区的公共空间系统,实现“城市价值”的提升。在此思路引领之下,设计方案开创性地突破了住宅小区以封闭围墙占满边界的常规做法,将南侧及东侧边界的空间塑造为高品质的开放空间,并基于这两条开放边界将地铁站、公园、河滨空间和工业厂区再生地块串联为连续的城市界面。

△ 项目总图 ©goa大象设计&TROP景观事务所

△ 南边界上的样板段商业街 ©CreatAR
02 边界翻转为核心
边界是内外交界之处,也是价值融汇之地。住宅项目的边界处理方式一直以来相对程式化,底层商业的空间体验总是较为单一。事实上,边界具有巨大的潜在价值,是设计和运营的机会点所在。
“边界翻转为核心”的设计思路是海上源项目的重要策略。建筑师认为,住宅小区的“边界”并非简单的“分界线”,而应是具有深度的“边界空间”。项目南边界被塑造一条长约240m、平均宽度约40m的商业街。商业街布局基本符合地块原有建筑肌理。商业街中容纳政府配套设施及少量商业,对内衔接住区花园,向外形成与城市空间的过渡。

△ 永平里空间形态分析 ©goa大象设计

△ 海上源南边界商业街草图 ©goa大象设计
在具体的空间塑造方面,上海花园里弄宜人的空间尺度和丰富的空间关系给建筑师以启发。建筑师打破单调的线性商业街模式,提出“花园式立体街区”的概念,将商业及配套功能拆解于尺度宜人的小体量盒子中,以叠合、穿插、拼贴的方式形成丰富的空间系统,包括形态不一的庭院、外摆空间、露台等。三维延伸的花园与商业盒子交错为一个紧密而有机的整体。

△ 花园式立体街区效果动画 ©goa大象设计
东侧边界通过通透式围墙、灰空间等“微处理”提升空间活力。考虑到未来使用者的真实需求,在靠近学校的区域安排了供家长接送孩子时坐憩、交谈的灰空间,地块街角设计了微型广场供骑行者和路人停留。
03 兼得便捷性与私密感
边界的共享并不意味着放弃秩序。在开放边界的同时合理组织各种人群的动线,处理私密与公共的层次,是建筑师发挥才能的舞台。海上源项目中,建筑师突破二维平面范畴,基于三维空间创造多个步行基面,并配合以灵活的电子安防系统,实现了一套垂直复合、各得其所的动线系统。


△ 立体化动线 ©goa大象设计
南侧四座住宅楼栋的业主拥有多样的归家方式。可通过地面商业街直接抵达楼栋电梯厅,以获得“无缝衔接城市烟火气”的便捷体验;也可选择更具仪式感和私密性的方式:穿过商业街、抵达住区二层通高大堂,门禁刷卡后步入电梯直达二层的专属屋顶花园入户。立体化的动线系统帮助每一座楼栋的业主在享受城市活力的同时,依然保有居住的私密感和价值感。
04 高品质外部空间
社交场景的实现依托于美好的空间品质。设计进程中,建筑师将对“高品质”的追求贯穿到边界及红线之外的地带——充足的阳光、绿意,是激发人自发停留、实现交往活动的必要条件,如忽略空间品质的塑造,则无从谈论活跃、生动的使用场景。
建筑师与景观团队密切合作,在设计中强化自然景观元素与建筑的互动关系,以实现高品质的整体环境。地块南边界被设想为一道三维立体的“城市绿丘”。从人行道地面延伸至商业街多标高处的绿色元素营造了宜人、健康的微环境,也补足了从江浦公园到滨水绿化带的绿色生态体系。

△ 城市绿丘概念草图 ©goa大象设计

△ 绿丘实景 ©河狸景观




△ 绿丘内景 ©CreatAR Images
05 多元业态的发生器
商业配套的成功离不开精准的运营。基于“花园式商业街”的空间结构,项目试图为社区商业配套的运营面貌探索新范本。7000㎡的社区配套包括生鲜超市、健身房、老人日间照料中心、青少年活动中心等;2000㎡的商业将容纳花店、书店等其他丰富业态。在设计的过程中,建筑师虽未直接参与商业运营工作,但基于专业视角与仁恒置地商业策划团队紧密沟通合作,为策划案提供充分的空间支撑。


△ 绿丘内景 ©CreatAR Images
值得欣慰的是,项目亮相不久,一位业主经洽谈后进驻南侧商业街开设自家的茶室。这一现象是对海上源“活化边界”策略有效性的验证,也鼓舞团队继续思考商业运营模式的新可能。

△ “喜舍”茶馆 ©仁恒·海上源
06 无背面的居住建筑
住宅建筑的立面塑造了绝大多数城市空间。建筑师提出“消除山墙面”的巧思,破除常规做法中山墙面的实墙的消极感受,以灵活开窗、通透多样的侧立面为城市街道提供更具“场所感”的建筑背景,从视觉感受的角度加强建筑与城市的融合感。

△ 侧立面效果 ©goa大象设计
07 模块化的立面控制体系
对于形式语言体系化梳理不应局限于住宅楼栋立面,而应覆盖至社区中的方方面面。项目南侧商业街丰富曲折的空间对于建筑师的落地能力提出一定挑战。建筑师采用以标准单元为基准叠加多样变体的方式,实现对整个街段的完整控制。
标准模块单元对横向出挑线条、窗扇、格栅等作出精细化的规定,使得各组件在满足商业功能需求的同时具有整体美感。出挑线条承担花台的作用,一层线条兼具雨棚功用。商业标牌位置、泛光照明灯具位置被妥善整合于立面体系之中。

△ 侧立面效果 ©goa大象设计

△ 商业街区立面实景 ©CreatAR Images
08 结语
居住小区占据中国城市相当大部分的土地。随着中国城市化步入新阶段,居住小区设计的价值评判体系正在相应的演变之中。更大程度尊重、树立、建立与城市的互动关系,从单一的自身价值视角转向多元的城市发展视角,是时代对住宅实践者提出的新要求。goa大象设计基于海上源项目,为上海城市成熟区域探索了新价值体系下住宅实践的可能性。期待项目完整竣工时为业主及访客带来愉悦而有温度的生活方式。

△ 示范区模型效果 ©goa大象设计

△ 示范区首层平面图 ©goa大象设计

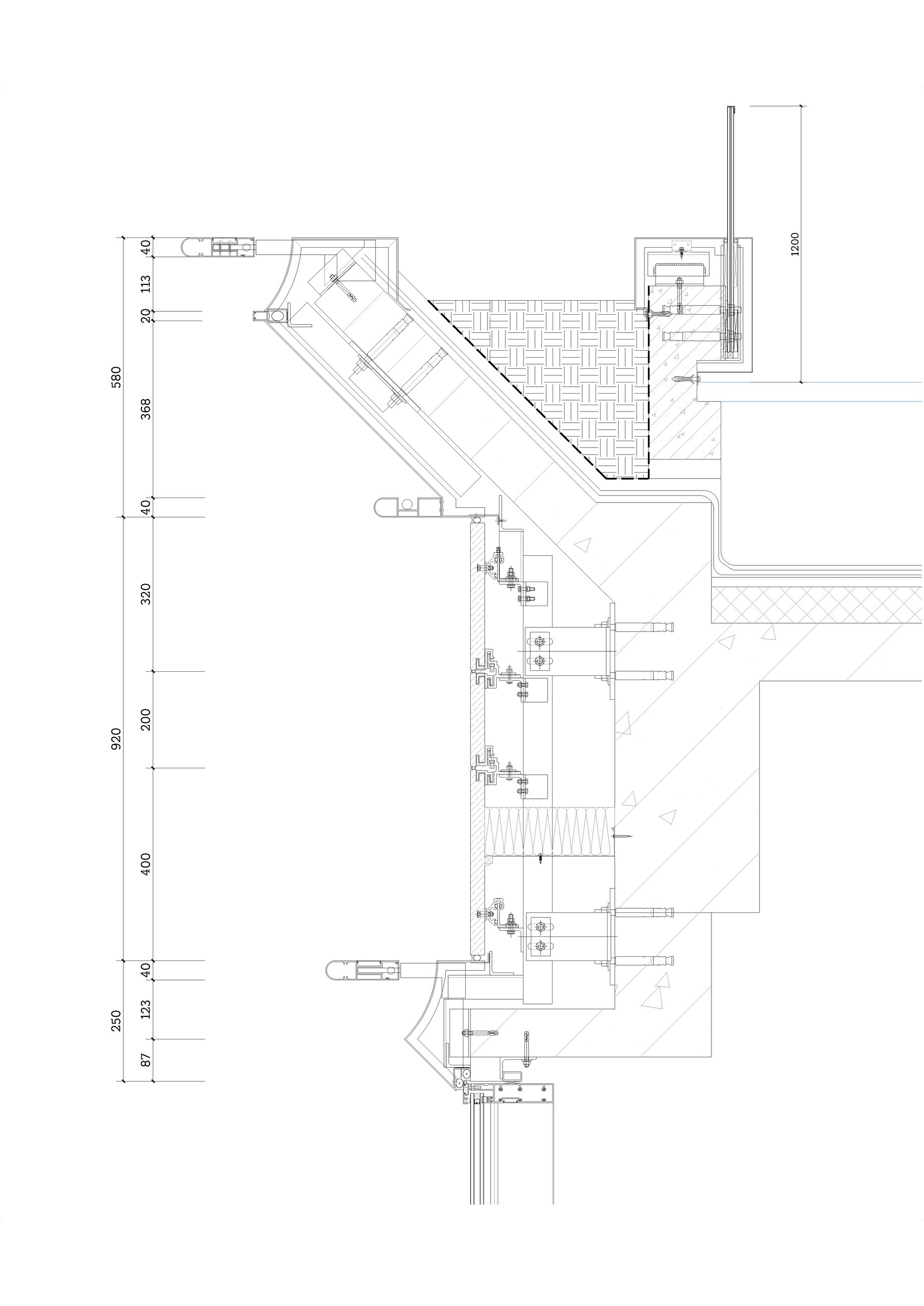
△ 典型墙身 ©goa大象设计

△ 典型墙身大样 ©goa大象设计
Cloud 11 | Snøhetta
张江科学之门双塔:以前瞻设计打造城市的创新引擎 | Gensler
Le Stalle丨Pedro&Juana
既下山·大同:城墙脚下的古城新章 | goa大象设计
观音桥西进记:重庆启元综合开发的6个设计决定 | goa大象设计
苏州狮山悦榕庄与悦椿酒店 | goa大象设计
ZONES I POLY VOLY 新办公空间丨众舍设计事务所
气泡宇宙 | VAVE Studio
深圳湾超级总部基地城市展厅改造设计丨PILLS
订阅我们的资讯
切勿错过全球大设计产业链大事件和重要设计资源公司和新产品的推荐
联系我们
举报
返回顶部





