
珍珑·青石子度假庄园接待中心室内设计 | 植岩建筑
植岩建筑 ,发布时间2022-09-19 10:03:57
项目名称: 珍珑·青石子度假庄园接待中心室内设计
建筑事务所/公司/机构/单位: 上海植岩建筑设计事务所
事务所/公司/机构/单位网站: http://zdesignstudio.cn/
联络邮箱: 519422416@qq.com
公司所在地: 中国 上海
设计时间|2020年9月
竣工时间|2021年12月
建筑面积: 1000㎡
项目地址: 浙江省舟山市普陀区塘头村青石子2号
主要材料:微水泥、水磨石、火山岩、原木皮、夯土板、黄铜不锈钢
主创建筑师: 朱晓燕
主创建筑师邮箱: zoezhu99@qq.com
摄影师: 瀚墨摄影 壹高
项目参与者
设计团队: 纪晓静、周宗亮、柯进
委托方: 舟山珍珑旅游管理有限公司
景观设计: 上海植岩建筑设计事务所
施工方: 上海未凡建筑装饰设计工程有限公司
版权声明:本链接内容均系版权方发布,版权属于 植岩建筑,编辑版本版权属于设计宇宙designverse,未经授权许可不得复制转载此链接内容。欢迎转发此链接。
版权声明:本链接内容均系版权方发布,版权属于植岩建筑,编辑版本版权属于设计宇宙designverse,未经授权许可不得复制转载此链接内容。欢迎转发此链接。
Copyright Notice: The content of this link is released by the copyright owner Z& Design. designverse owns the copyright of editing. Please do not reproduce the content of this link without authorization. Welcome to share this link.
本案是珍珑青石子度假村接待中心建筑的室内设计。室内空间以开放的结构形式满足功能与审美的需求。将当地历史文化、自然环境与新兴潮流相结合,因地制宜,在都市以外,构建一个新的现代“村落”——城市人放松、聚会和社交的聚落。

©瀚墨摄影 壹高

©瀚墨摄影 壹高

©瀚墨摄影 壹高
接待中心共分为上下两层,一层为公共区域,包括:接待区、餐厅、咖啡书吧、会议室、厨房等;二层为客房区。在设计思路上延续建筑设计的“与自然共生共融”的设计理念,同时也结合了当代人对空间的审美喜好。一层公共空间设计以尽可能大的挑高开阔视野,大面积的玻璃幕墙弱化了室内外的空间界限,将视线的流动性与起伏的海岸与绵延的山脊结合,增加室内外空间的互动与交流,以及人与自然的交流。

©瀚墨摄影 壹高

©瀚墨摄影 壹高

©瀚墨摄影 壹高

©瀚墨摄影 壹高
位于建筑中心的前台接待区渲染了整个公共区域悠然闲适的氛围,设计团队十分谨慎,避免繁复的设计喧宾夺主,令自然景观失了颜色。因此,以简单纯粹的材料与干净利落的线条为主,营造连贯且舒畅的空间形态,让视觉与动线结合,传递出一种平和、轻松,尺度、光线和色彩给人积极、灵动、柔和的氛围之感。

©瀚墨摄影 壹高

©瀚墨摄影 壹高

©瀚墨摄影 壹高

©瀚墨摄影 壹高
厅内装饰大面积玻璃幕墙,框取东部舒缓的青山与正对面海天一色的美景,西侧以火山岩拼贴的石材装饰墙体与寂静的海面形成鲜明对比,留给人们海浪即将拍打岩石的无限遐想。

©瀚墨摄影 壹高

©瀚墨摄影 壹高

©瀚墨摄影 壹高

©瀚墨摄影 壹高

©瀚墨摄影 壹高
西侧的咖啡区是另一个可以涤净纷乱思绪的好去处。三面开敞的全明落地窗将室外的山水树木、朝阳彩霞、海涛小岛…尽收眼底

©瀚墨摄影 壹高

©瀚墨摄影 壹高

©瀚墨摄影 壹高

©瀚墨摄影 壹高
连通一二两层的是一架线条流畅的旋转楼梯于建筑中心处,打破建筑布局硬朗的直线型,成为室内空间设计一道独特的风景。

©瀚墨摄影 壹高

©瀚墨摄影 壹高

©瀚墨摄影 壹高

©瀚墨摄影 壹高

©瀚墨摄影 壹高
会议室外公共休息区,以冷暖色调有节奏的搭配,与婆娑的树影动静结合营造出舒缓且有厚度的闲暇时光。这样的配合与公共空间的互动功能相得益彰。

©瀚墨摄影 壹高
二楼客房的设计手法以简洁大方、干净利落为主,省略了不必要的装饰与色彩,突出自然环境之美。落地窗与星空顶窗就如一副副风景画框,与一年四季、山川海岛一同做成装点房间的画面,带游客走进风光不与四时同的如诗美卷。

©瀚墨摄影 壹高

©瀚墨摄影 壹高

©瀚墨摄影 壹高

©瀚墨摄影 壹高
山景套房Mountain View Suite

©瀚墨摄影 壹高

©瀚墨摄影 壹高

©瀚墨摄影 壹高

©瀚墨摄影 壹高
山景大床房Mountain View King Room

©瀚墨摄影 壹高

©瀚墨摄影 壹高

©瀚墨摄影 壹高

©瀚墨摄影 壹高

©瀚墨摄影 壹高

©瀚墨摄影 壹高
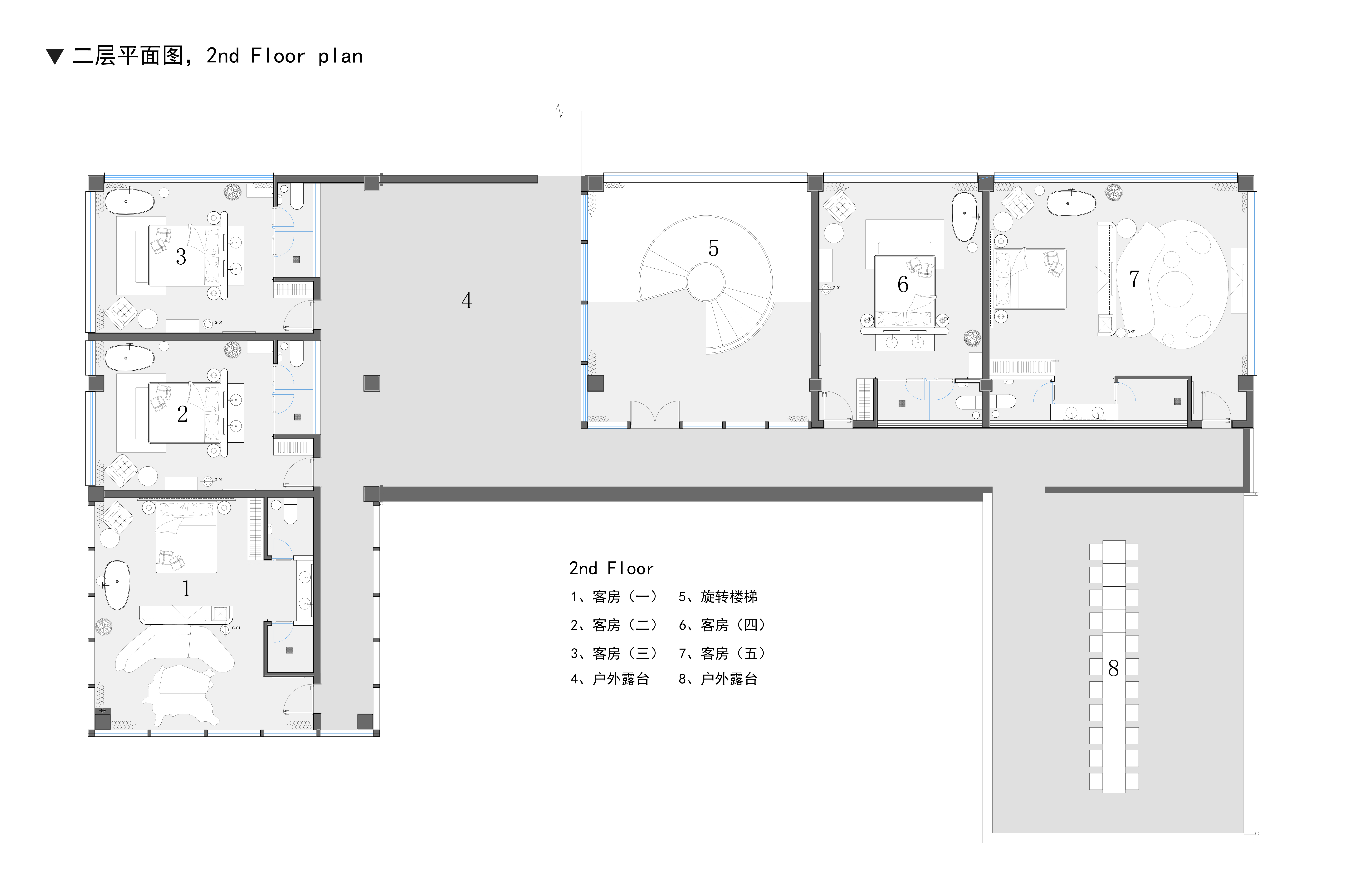
接待中心建筑平面图 Reception building floor plan

1F ©植岩建筑

2F ©植岩建筑

Waldorf Astoria New York | Skidmore, Owings & Merrill (SOM)
House of Two Grounds丨HAA Studio
MOMO ERA STUDIO前滩店,上海丨多么工作室Atelier d’More

珍珑·青石子度假庄园接待中心室内设计 | 植岩建筑
珍珑·青石子度假庄园建筑与景观设计 | 植岩建筑
ZONES I POLY VOLY 新办公空间丨众舍设计事务所

南阳万悦城广场景观&精神堡垒丨壹正企划
气泡宇宙 | VAVE Studio
订阅我们的资讯
切勿错过全球大设计产业链大事件和重要设计资源公司和新产品的推荐
联系我们
举报
返回顶部





