
睡眠研究所·Arch,北京丨多么工作室
多么工作室 Atelier d'More ,发布时间2022-03-15 09:59:18
项目名称:睡眠研究所·Arch
设计方:多么工作室
公司网站:www.d-more.cn
联系邮箱:dmore@foxmail.com
项目设计 & 完成年份:设计时间2021年&建成时间2022年
主创建筑师:王维、盛乐
设计团队:韦燕榕、陈艳、颜菲、徐钰芃
项目地址:北京,中国
建筑面积:249㎡
摄影版权:多么工作室
Project name:Sleeping lab·Arch
Design:Atelier d'More
Website:www.d-more.cn
Contact e-mail:dmore@foxmail.com
Design year & Completion Year:Designed in 2021&Completed in 2022
Chief architects: Wei Wang,Le Sheng
Design team: Yanrong Wei,Yan Chen,Fei Yan,Yupeng Xu
Project location:Beijing, China
Gross Built Area (square meters):249㎡
Photo credits:Atelier d’More
版权声明:本链接内容均系版权方发布,版权属于 多么工作室 Atelier d'More,编辑版本版权属于设计宇宙designverse,未经授权许可不得复制转载此链接内容。欢迎转发此链接。
版权声明:本链接内容均系版权方发布,版权属于多么工作室,编辑版本版权属于设计宇宙designverse,未经授权许可不得复制转载此链接内容。欢迎转发此链接。
Copyright Notice: The content of this link is released by the copyright owner 多么工作室. designverse owns the copyright of editing. Please do not reproduce the content of this link without authorization. Welcome to share this link.
项目概况
Project overview
项目坐落于北京通州区张家湾镇的皇木厂村内,这里没有农田,更像是京城的后花园,一栋栋长相一致的小房子,白墙红窗,仍然可以让人感受到皇家新村600余年悠久历史的韵味。建筑位于村口西北角的醒目位置,是一栋两层砖混结构的小楼,原本作为民房及办公使用,多么工作室受委托对其进行改造设计,作为睡眠研究所在北京环球影城周边设立的首个民宿项目,饱经风霜的外墙和被风吹掉渣的屋檐早已迫不及待地希望有人来为它翻新和修复。

日景下的建筑,architecture during the day©多么工作室
The project is located in Huangmuchang Village, Zhangjiawan Town, Tongzhou District, Beijing. There is no farmland here, but it is more like the back garden of Beijing. The small houses with the similar appearance, white walls and red windows, the 600-year history of the Royal New Village can still be felt here. The building is located in the eye-catching position in the northwest of the village. It is a two-story brick-concrete building, originally used as residential and office. Atelier d’More was commissioned to renovate the space, as the sleep Institute’s first B&B project near Beijing Universal Studios. The weather-beaten exterior walls and wind-blown eaves are eager to be refurbished and restored.
营造风景的建筑意图
The architectural intention of creating a landscape
周边的环境缺少景色的条件下,我们决定制造向内的风景,营造出一个别具意趣的私密花园,于是便有了围合式庭院空间的设计构想,仅在南侧围墙上开拓少许框景式的洞口,除了蓝天白云,纷杂与喧嚣都被隔离在墙外,而院内建筑的大玻璃窗,则积极地引入庭院内的景与光,成为室内空间体验的一部分。

南侧围墙上的取景框,viewfinder on the south wall©多么工作室
Given the lack of scenery in the surrounding environment, we decided to create an inward view and create an interesting private garden, which led to the idea of the enclosed courtyard space. Only a few viewing frame are opened on the south wall. In addition to the blue sky and white clouds, the chaos and noise are isolated from the wall. The large glass windows of the building actively introduce the scenery and light of the courtyard, becoming a part of the indoor space experience.

建筑与周边环境,the building and surrounding environment©多么工作室
我们将100平的矩形院落分解成了多个半围合的小院子,试图营造出内向性的内院环境,每个院子会有一颗小树作为主角(由于是冬季完工,小树还未栽种),院落之间形成一种有机的联系,并且在多层次空间的营造下让茶室、客房、围墙与院子发生一系列的互动关系,当使用者进入其中,都能以他们自己的方式和视角阅读到建筑的内在。建筑的容器作用便得以体现,影随光动,人移景异,让建筑空间富有一番诗意。
We divided the rectangular courtyard of 100 square meters into several small semi-enclosed courtyards, trying to create an inner courtyard environment. Each courtyard will have a small tree as the protagonist (since it is completed in winter, the tree has not been planted), an organic connection is formed between the courtyards, and a series of interactions between tearoom, guest rooms, walls and the courtyard are created under the multi-level space. When users enter the building, they can read the interior of the building in their own way and perspective, so the container function of the building can be reflected. The shadow moves with the light, and the scenery changes with people, making the architectural space full of poetry.

建筑南立面,south elevation©多么工作

茶室与庭院的对话,dialogue between teahouse and courtyard©多么工作室

半围合院落,the half-enclosed yard©多么工作室

一楼客房入口庭院,将天空框入院内, the courtyard at the entrance of the guest room on the first floor frames the sky©多么工作室
自由而流动
Free flow
建筑与室内的设计语言是以一道1/4圆弧为出发点,以严谨的态度自由地流动在空间里,通过几何构成的方式来增加建筑的张力。立面上向外延申的建筑体块,以流动的姿态向自然靠近,将建筑、自然与人的距离拉近。而白色的外墙使得建筑变得抽象而有雕塑感,通过白色材质的渲染模糊了墙和顶的界限,流动的空间和自然的光线交融在一起,带给人纯粹的体验和想象的空间。
The design language of the architectural and interior is based on a quarter arc, which flows freely in the space with a rigorous attitude and increases the tension of the building by means of geometric composition. The outward extension of the building block on the facade is close to nature in a flowing posture, bringing the distance between architecture, nature and people closer. The white facade makes the building abstract and sculptural, through the rendering of white material, the boundary between the wall and the top is blurred, and the flowing space and natural light blend together, bringing people a pure experience and imagination space.

建筑入口,entrance©多么工作室

几何的张力,geometric tension©多么工作室

茶室内外的风景,the scenery inside and outside the tearoom©多么工作室
组装“玩具”
Assembling “Toy”
多么工作室在预制化拼装组合家具设计制作上已实践多年,不同于制造业,传统装修行业自动化进程发展缓慢,而我们组装家具的理念相当于施工开启了自动挡,容易程度甚至可以让业主亲自操作。我们把这种组装家具看成是大块的玩具,让原本枯燥的施工作业成为了游戏,工人、设计师、业主都能享受其中的过程。室内的很多软硬装都可以用预制组件在现场组合拼装,在我们多个项目上也已经得以实现,这一设计手法的应用,对于低建造成本的项目非常有意义。
Atelier d’More has been engaged in the design and production of prefabricated assembled furniture for many years, different from the manufacturing industry, the traditional decoration industry automation process develops slowly, and our concept of furniture assembly is equivalent of turning on automatic gears for construction, that the clients can even operate themselves. We regard this kind of assembling furniture as a big toy, making the boring construction work become a game, the workers, designers and owners can enjoy the process. Many of the interior soft and hard decorations can be assembled on-site with prefabricated components, which has been implemented in many of our projects. The application of this design method is very meaningful for low construction cost projects.

洞穴之下的公共空间, the common area in the cave-like space©多么工作室

开放式厨房,open kitchen©多么工作室

用餐区概览, dining area©多么工作室
诗意盎然的白
Poetic white
该项目在成本控制方面是及其严苛的,怎样用最简单的材料与工艺,创造出最与众不同的空间体验是我们在此项目中思考的课题。怎样一种颜色能描绘出梦的色彩,那就是一望无际的“白”。在这个白色的空间里,一切都显得格外真实、纯粹,像掉落进棉花糖里的蚂蚁,这里只有远离外在世俗的故事。在处理墙与墙的交接线的时候我们格外留心,每一根线就像是勾勒出这个梦的网,我们希望用最简洁的语言编织出最淳朴的梦境。像雾一样湮灭在视线里,消失在那诗意盎然的“白”里。
This project is extremely strict in cost control. How to use the simplest materials and techniques to create the most distinctive space experience is the topic we think about in this project. What color can describe the color of dreams, that is the endless “white”. In this white space, everything seems extraordinary true and pure, like an ant falling into a marshmallow, there are only stories far from the outside world. We pay special attention when dealing with the line of wall to wall, each line is like the web that outlines the dream, we hope to weave the most simple dream with the simplest language. Like fog annihilate in the line of sight, disappear in that poetic “white”.

客房阳台的光景, the view from the guest room balcony©多么工作室

客房,guest room©多么工作室

房内一体的木制家具与白色形成鲜明对比, the wooden furniture contrasts with white material©多么工作室

楼梯间细节, staircase detail©多么工作室

黄昏下的院落与建筑,the courtyard and architecture at dusk©多么工作室

黄昏下的茶室与庭院,the tearoom and courtyard at dusk©多么工作室

场地入口,the entrance of the site©多么工作室

白色外墙在黄昏下对光线的反馈,the white facades respond to the light at dusk©多么工作室

夜幕下的建筑,the architecture at night©多么工作室

室内的灯光向外溢出,the light in the room pouring out©多么工作室

轴侧动图,axonometric drawing(gif)©多么工作室

总平图, site plan©多么工作室

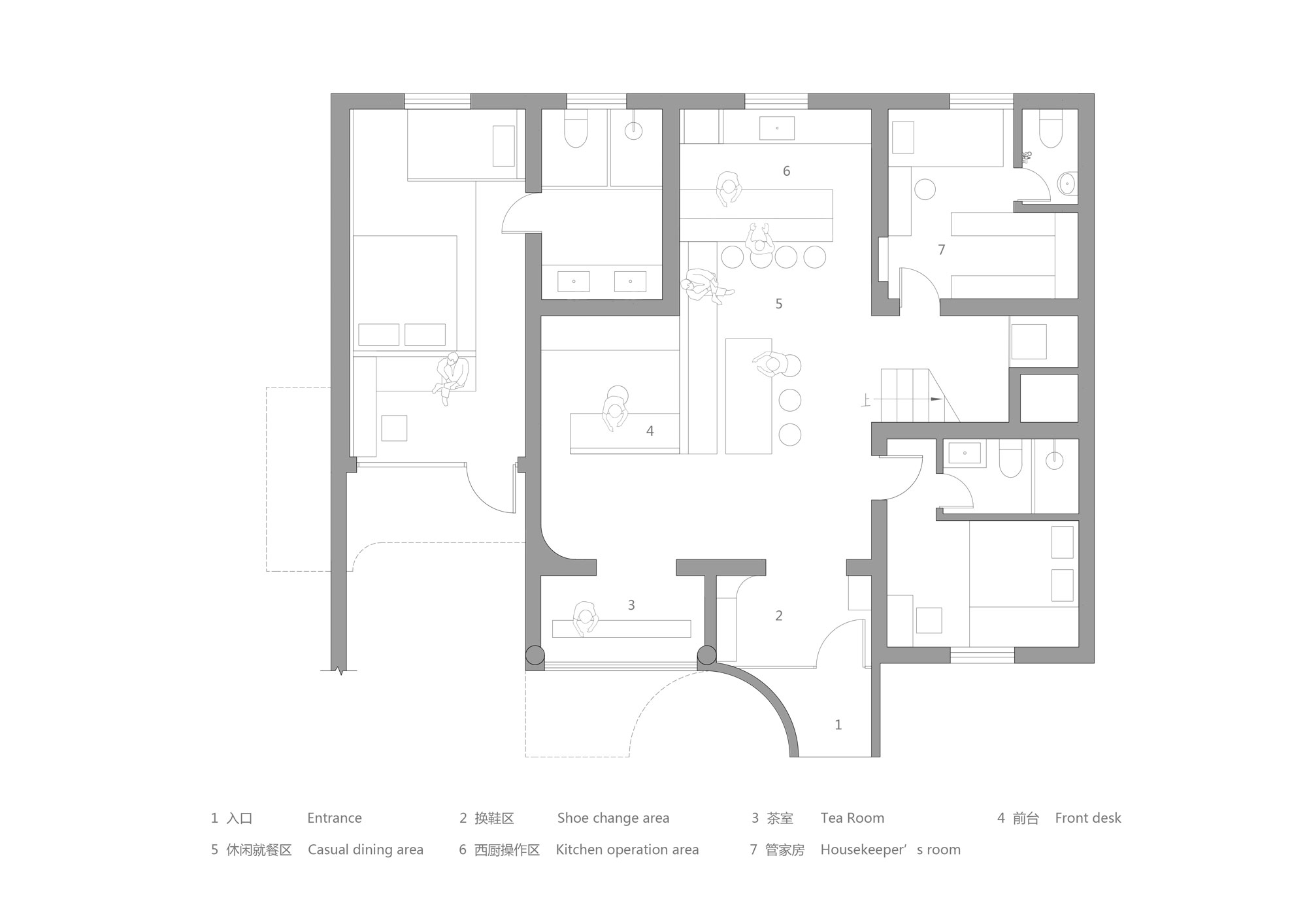
一层平面图, ground floor plan©多么工作室

二层平面图, second floor plan©多么工作室

Cloud 11 | Snøhetta
张江科学之门双塔:以前瞻设计打造城市的创新引擎 | Gensler
Le Stalle丨Pedro&Juana
MOMO ERA STUDIO前滩店,上海丨多么工作室Atelier d’More
壹心空间自习室,南京丨多么工作室 Atelier d'More
MOMO ERA STUDIO徐汇店,上海丨多么工作室
ZONES I POLY VOLY 新办公空间丨众舍设计事务所

南阳万悦城广场景观&精神堡垒丨壹正企划
气泡宇宙 | VAVE Studio
2023 DNA Paris Design Awards
订阅我们的资讯
切勿错过全球大设计产业链大事件和重要设计资源公司和新产品的推荐
联系我们
举报
返回顶部





