SIDANDA旗舰店 | 蒋杰设计工作室
蒋杰设计工作室 ,发布时间2021-10-27 10:25:29
项目名称: SIDANDA旗舰店
设计公司: JIANGJIE·DESIGN
主创设计: 蒋杰
设计团队: 徐瑛嫔、张惠鑫
项目地址: 杭州市萧山区第六空间
完工时间: 2021.7
项目面积: 350㎡
施工团队:ASPARK匠星
摄影团队:WEN STUDIO
版权声明:本链接内容均系版权方发布,版权属于 蒋杰设计工作室,编辑版本版权属于设计宇宙designverse,未经授权许可不得复制转载此链接内容。欢迎转发此链接。
版权声明:本链接内容均系版权方发布,版权属于蒋杰设计工作室,编辑版本版权属于设计宇宙designverse,未经授权许可不得复制转载此链接内容。欢迎转发此链接。
Copyright Notice: The content of this link is released by the copyright owner JIANGJIE DESIGN. designverse owns the copyright of editing. Please do not reproduce the content of this link without authorization. Welcome to share this link.
本质、真实、自然的感官场域
“建筑是有自己的领域,它与实际生活有着物质的联系、我并不认为建筑是一种信息或象征,它首先是生活的容器和背景,敏感的容纳着地板上脚步的节奏,容纳着工作的专注,容纳着睡眠的寂静”
——卒姆托

© WEN STUDIO
我们推崇本质、真实、自然的设计,肯定却不刻意,倾诉却不矫情,表现是建造的结果,是对场地的回应,是对材料诗意的表达。
每一种设计语言都与产品叙事相一致,是极简主义更是“实在主义”。我们的任务由优化常规体验所谓“经验的”、“非本质的”、“可有可无的”,转而朝向了保持中立、将设计简化,排除杂质和成规来塑造空间风格。

© WEN STUDIO
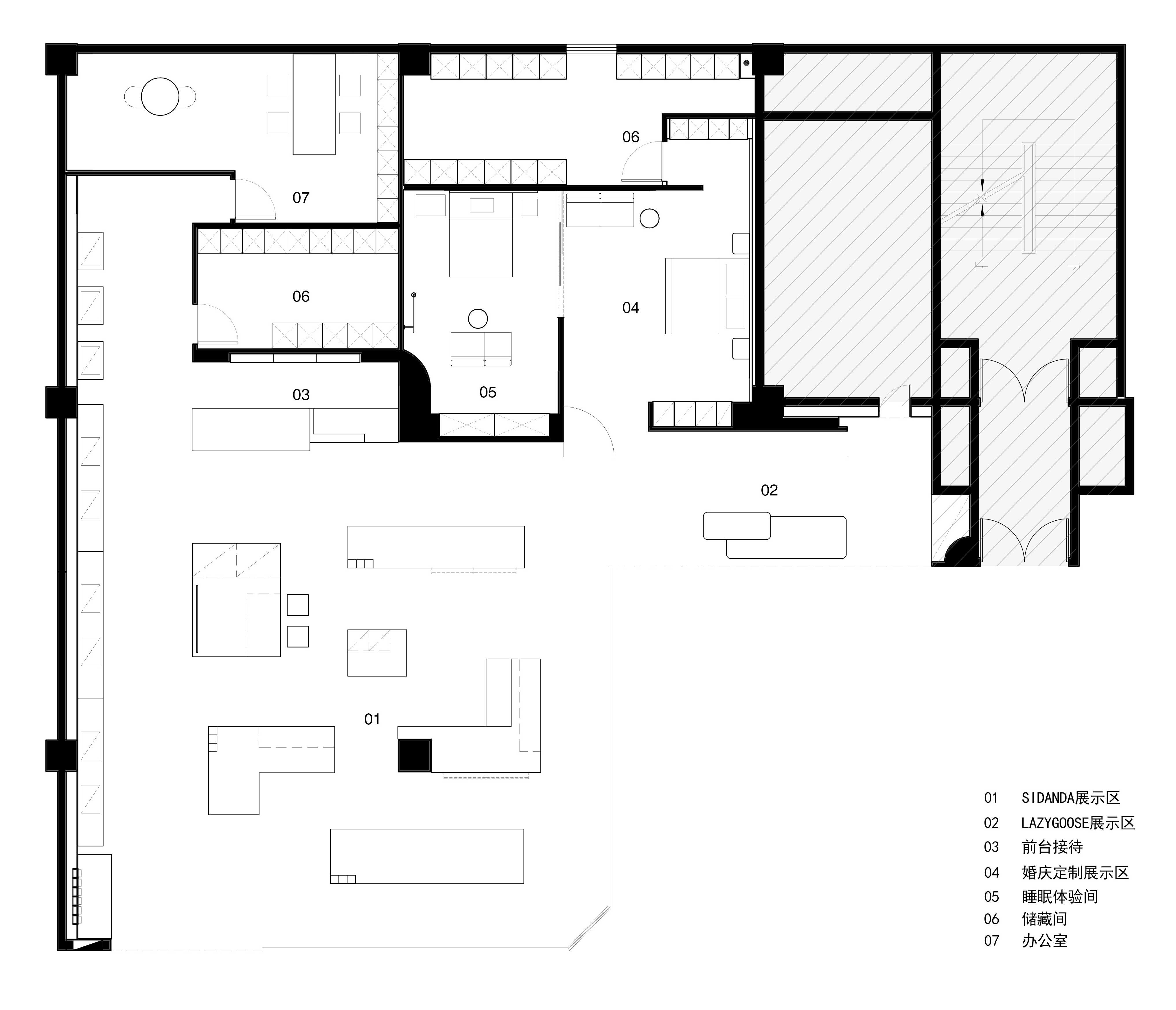
SIDANDA是一个专注于高端鹅绒床品与睡眠环境倡导的品牌。他们凭借纯粹的产品态度和定义未来的决心打造了最受欢迎的线上品牌。在线下探索的过程中,设计师希望不仅能延续他们一贯的价值主张,同时能着眼于未来,拓展掷地有声的空间概念与更高的品牌价值,在大众心中树立独特形象。
流动 : 空间之于人







© WEN STUDIO
设计师以“人的理解”为核心串联起所有的设计灵感,创造出一条独特的参观动线。用户对产品的认知会从“一朵绒的诞生”出发,由浅入深地了解一个枕头、一条被子,到所有SKU。随着了解逐渐深入,用户移步换景至体验区域,在极简的背景中围绕产品展开想象,在“可添加的空间”中完成个性化的创造。
聚焦 : 空间之于产品

开放的展台足以平铺整张被子 © WEN STUDIO
关于产品的展示,设计师希望能专注于产品本身,运用简洁的素材充分传达产品的核心特质 ——柔软而温暖。所以设计师采用简单的几何形体,形成开放的大尺度展台,不仅在对比中突出产品的柔软,也创造出适合展开被子等大号产品的平面。

深蓝色展台营造静谧之感,暖白色空间奠定舒适基调 © WEN STUDIO



© WEN STUDIO
完全哑光的深蓝色展台与白色柔软的产品产生冲突、对比。我们可以在空间中获得这样的想象:第四空间中,柔软的枕头漂浮在连续开阔的深蓝色水平面上,舒适且美好。


© WEN STUDIO
俯仰 : 空间之于空间

区域之间开放式连接 © WEN STUDIO


© WEN STUDIO
空间与空间的转换松弛而有节奏。在空间组织上兼顾公共空间的开放性与体验区域的私密感:设计通过调整地面高低、尺度大小、光线强弱来暗示功能变化。贯穿始终的建筑体块使每个区域互通有无,在这里没有绝对独立,只有相对关联。

光线、材质、气味共同营造一种放松舒适的氛围使用户更好地进一步了解产品 © WEN STUDIO
在这个向内探索的纯粹空间里,我们并不需要他人预设好生活场景,而是将自己溶进一种温和且悠长的无为环境里,逐渐解放那些被禁锢住的“可能性”。希望设计师和使用者在这个过程里,“让概念幸免于形式的俘获,让形式收获真正的自由”。




© WEN STUDIO



© 蒋杰设计工作室
REXON企业空间 | ByoArc Studio拜昂建筑
走进“马蒂斯的调色盘” —上海喜岳投资总部办公空间丨刘宇扬建筑事务所
M33 House | GRAT

X sign Space展览空间 | 蒋杰设计工作室
3/9服装店 | 蒋杰设计工作室
SIDANDA旗舰店 | 蒋杰设计工作室
深圳湾超级总部基地城市展厅改造设计丨PILLS
气泡宇宙 | VAVE Studio
AVANT MAR | Tense Architecture Network
订阅我们的资讯
切勿错过全球大设计产业链大事件和重要设计资源公司和新产品的推荐
联系我们
举报
返回顶部





