WTS Office | João Tiago Aguiar Arquitectos
João Tiago Aguiar Arquitectos ,发布时间2021-09-10 10:10:10
Project name: Escritórios WTS / WTS Office
Company name: João Tiago Aguiar, arquitectos
Website: www.joaotiagoaguiar.com
Contact e-mail: info@joaotiagoaguiar.com
Project location: Lisbon, Portugal
Completion Year: 2019
Construction Area: 108m2
Participants:
Responsible Architects: João Tiago Aguiar
Project team: Rúben Mateus, Susana Luís, João Nery Morais, André Silva, Maria Sousa Otto, Samanta Cardoso de Menezes, Diogo Romão, Arianna Camozzi.
Client: Private
Builder: BAUKELL
Photography:
Photograph credits: FG+SG – Architecture Photograph
Photographer´s website: www.ultimasreportagens.com
版权声明:本链接内容均系版权方发布,版权属于 João Tiago Aguiar Arquitectos,编辑版本版权属于设计宇宙designverse,未经授权许可不得复制转载此链接内容。欢迎转发此链接。
版权声明:本链接内容均系版权方发布,版权属于João Tiago Aguiar Arquitectos,编辑版本版权属于设计宇宙designverse,未经授权许可不得复制转载此链接内容。欢迎转发此链接。
Copyright Notice: The content of this link is released by the copyright owner João Tiago Aguiar Arquitectos. designverse owns the copyright of editing. Please do not reproduce the content of this link without authorization. Welcome to share this link.
To address business growth and a higher number of employees, the WTS Viagens moves to other facilities in Lisbon, which required a complete interior work to meet the company's needs and provide well-being to employees and clients.

© FG+SG – Architecture Photography

© FG+SG – Architecture Photography
© FG+SG – Architecture Photography

© FG+SG – Architecture Photography
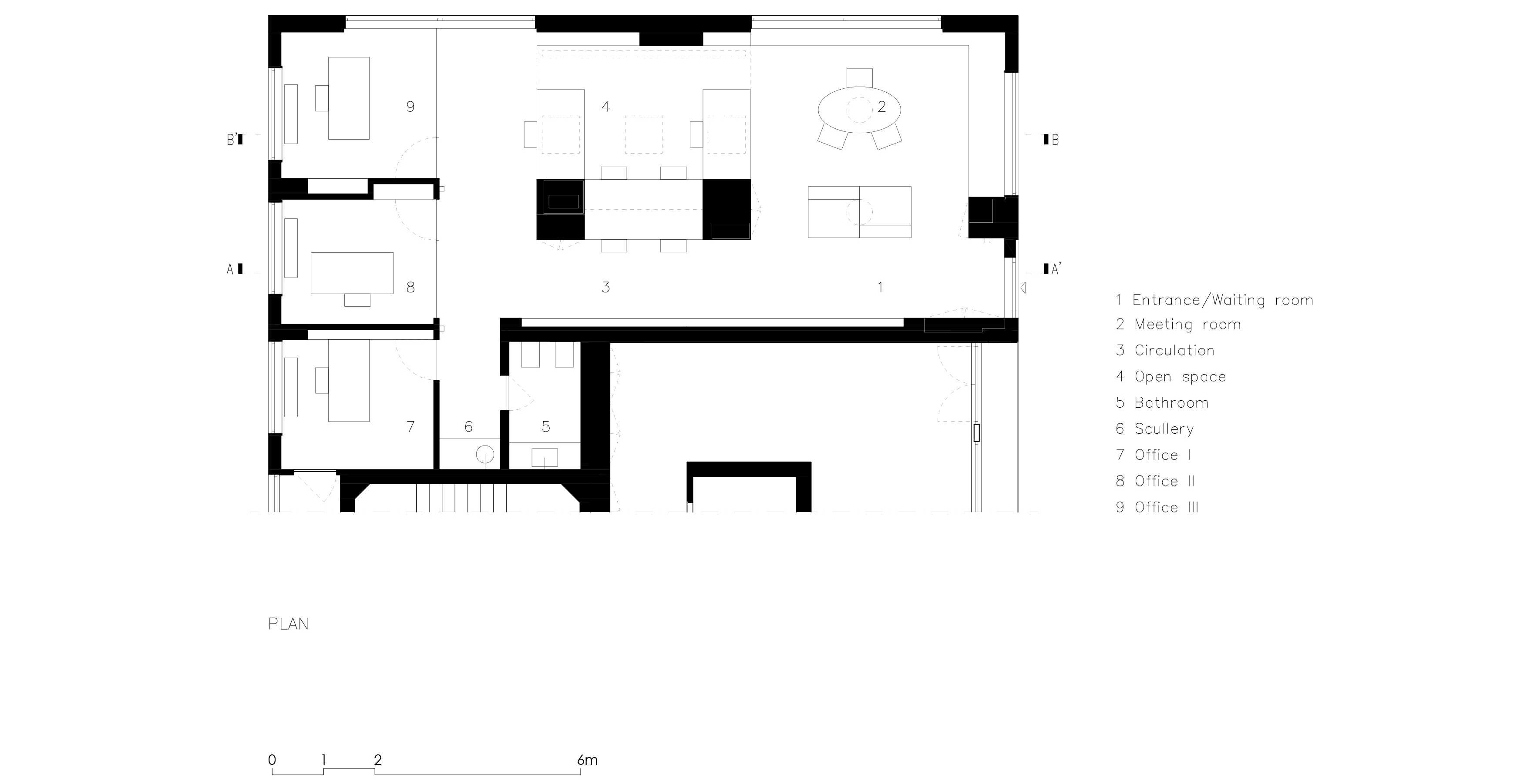
The store was a rough construction needing a project design from scratch that would be balanced, functional and inspiring. Besides a central open-space volume for employees, where there is also a waiting area and a table for meetings, that zone has one bathroom, a pantry and three individual offices are part of this zone. Following the concept, the volume, placed in the centre, is in high-gloss lacquered MDF and have six to eight workstations and plenty of room for storage and printing.

© FG+SG – Architecture Photography

© FG+SG – Architecture Photography

© FG+SG – Architecture Photography
For the entrance area, next to the window, there is a waiting area and an adjoining space for informal meetings with clients who want to get to know and choose destinations in a relaxed and professional way.
© FG+SG – Architecture Photography
© FG+SG – Architecture Photography
© FG+SG – Architecture Photography
Was designed Lacquered MDF carpentry, next to the large spans, to hide all those unesthetic elements such as the HVAC and technical installations.

© FG+SG – Architecture Photography

© FG+SG – Architecture Photography

© FG+SG – Architecture Photography

© FG+SG – Architecture Photography
The protrusions and recesses on the dividing wall with the neighbouring fraction were entirely covered with laminated plaster and installed a light slot along the wall, forming an illuminated niche. Lighting also deserved special attention in all space design, with lightboxes in the ceilings complementing the natural lighting.
© FG+SG – Architecture Photography
© FG+SG – Architecture Photography
© FG+SG – Architecture Photography
More cost-effective materials revealed to be the best option because they are easier to maintain. One example is the flooring in cork, which also gives a Portuguese touch.

Plan

Section AA' BB'
Volta Apartment | Conrado Ceravolo Arquitetos
莫干山木子林夕云民宿丨实在建筑SZ-ARCHITECTS
Countryside: A Place to Live, Not to Leave, an Exhibition | OMA
AlP Azóia Villa丨João Tiago Aguiar Arquitectos
Expo PB Apartment | João Tiago Aguiar Arquitectos
WTS Office | João Tiago Aguiar Arquitectos
ZONES I POLY VOLY 新办公空间丨众舍设计事务所

对话|威尼斯双年展主题展参展建筑师孟凡浩:建筑如何引领“共生”
气泡宇宙 | VAVE Studio
订阅我们的资讯
切勿错过全球大设计产业链大事件和重要设计资源公司和新产品的推荐
联系我们
举报
返回顶部





