阿那亚咖啡厅丨odd (okamoto deguchi design)设计事务所
odd设计事务所
,发布时间2020-04-26 13:43:45
项目名称: 阿那亚咖啡厅
建筑事务所: odd (okamoto deguchi design)设计事务所
--
项目建筑师: 出口 勉 \ 冈本 庆三 \ 张凤 \ 黄业彪
项目地点: 河北省秦皇岛阿那亚
完成年份: 2018年6月
建筑面积: 290㎡
摄影师: 锐景摄影 —— 广松美佐江/宋昱明
其他项目合作方
灯光设计: Ljus Design; Maki
版权声明:本链接内容均系版权方发布,版权属于 odd设计事务所,编辑版本版权属于设计宇宙designverse,未经授权许可不得复制转载此链接内容。欢迎转发此链接。
阿那亚咖啡厅,这座具有流畅曲面状如大帽子的建筑位于阿那亚公园,意在沿黄金海岸线为该区域打造一个简单而美好的度假社区。由于沿海,岸边形成了形状各异的沙丘,设计的灵感便来源于温和的海风。对于一个休闲度假,让人身心愉悦之地,风是非常重要的一个自然元素。

夕阳时分下的阿那亚咖啡

内部实景图
柱网结构和立面的曲面玻璃产生不规则平面,使一部分柱子位于室外,一部分位于室内,中心形成一个内庭院。

内部实景图
不规则平面,曲面屋顶,引人进入的屋顶高起部分,为下面遮阴的低矮之处,形成一个有趣而不单调的空间感受。

整体实景图
另外,120mm厚的金属铝屋顶和极其通透的玻璃立面,创造了一幅轻盈如风的画面。

整体实景图
宽阔的悬挑式屋顶如同一个巨大的遮阳伞,游客在公园里游玩后可在此处歇息放松。

内部实景图
尽管室内面积只有90平方米,但四周通高的玻璃立面则完全没有让使用者感到压抑。

灯光效果笼罩的阿那亚咖啡厅
纯净明亮的空间内,不同时间光影的变化带给使用者不一样的感受。

夜晚的阿那亚咖啡厅
夜晚,在明黄的灯光效果衬托下,曲面屋顶的轮廓在夜色的笼罩下被自然地呈现,周围的水面倒映着黑暗中明亮的空间,如云般环绕着这漂浮在风中的建筑物。
实景一览





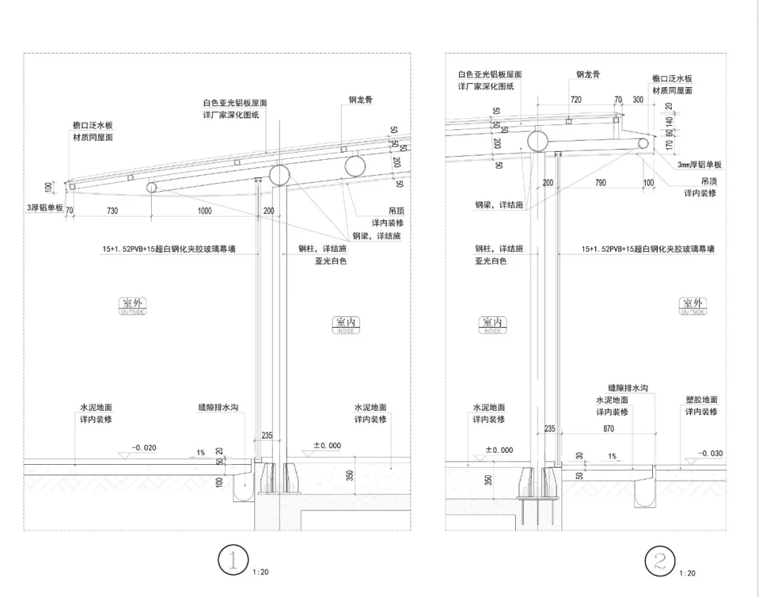
设计图纸







Forum Deutsche Sprache | HENN
West Gate Tunnel | Wood Marsh Architecture
Shanghai Grand Opera House | Snøhetta
杉木日料丨odd设计事务所

玺·炭火割烹丨odd设计事务所
万焘锅丨odd设计事务所
汤山星空餐厅丨孟建民本原设计

RETAIL DESIGN FOR HUMAN HORIZONS丨GRAFT
塞伦斯 · 密境民宿 | 無隐建筑
订阅我们的资讯
切勿错过全球大设计产业链大事件和重要设计资源公司和新产品的推荐
联系我们
举报
返回顶部





